Datasheet

G-168 Safety Sensors / Components
Production Termination
Following the release of the D4NL, production of the D4DL will be
terminated.
Date of Production Termination
Production of the D4DL Series will be terminated in November 2003.
Date of Substitute Product Release
Sale of the D4NL Series commenced in October 2002.
Product Replacement
The D4DL and D4NL have basically the same structure, and use the
same mounting method and Operation Keys. There are differences,
however, in the external appearance and the mounting sections.
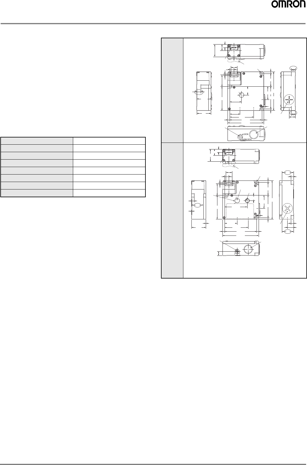
Comparison of the D4DL and Substitute Products
Dimensions
Differences:The depth of the M4 mounting screw holes is 29 mm for
the D4NL, as opposed to 10 mm for the D4DL. There-
fore, when replacing the D4DL with the D4NL, use M4
screws that are 19 mm longer than the ones used
before.
Model D4NL-@
Switch color Very similar
Dimensions Very similar
Wiring/connection Significantly different
Mounting method Very similar
Ratings/performance Very similar
Operating characteristics Very similar
Operating method Completely compatible
Discon-
tinued
Model
(D4DL)
Re-
place-
ment
prod-
ucts
(D4NL
Series)
Cap screw
Indicator
Conduit cap
Release key
35
10
Three, 4.3-dia. holes
55
±0.2
32
±0.2
(59)
79
±0.2
5
(88.5)
(95)
10
8
15.5
30.5
10
(21)
(28.8)
(25.1)
(32.3)
(15.3)
(3)
4
4
4.5
10.5
15.3
4.4
28.5
59
(37)
Operation Key
Cap head
UNLOCK
LOCK
UNLOCK LOCK
30.5
15.5
8
15.3
10.5
4.4
28.5
A
59
(30.7)
(57.9)
79
±0.2
(88.5)
5
4.5
(55.8)
Dummy cap
Indicator
(13.3)
55
±0.2
(95)
(32.3)
(3)
4
4
Three, 4.3-dia. holes
6.5
6.5
29
Cap screw
29
(15.3)
Conduit cap
Release key
(10)
35.5
0.5
0.5
6.5
29
32
±0.2
Operation Key
Cap head
The above diagram is for Switches with the release key on the
bottom. For Switches with the release key on the front,
interchange the positions of the release key and dummy cap (A).










