Manual

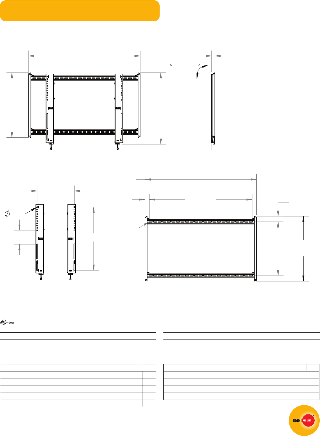
inches (mm)
47.2
(1200)
47.2
(1200)
R .2
(5)
22.8
(580)
2.3
(59)
1.9
(47)
43.5
(1106)
1.4
(36)
30.3
(770)
27.5
(698)
27.5
(698)
FRONT VIEW
MOUNTING PROFILE
400 - 1110
680150
10
PANEL ATTACHMENT -
VESA COMPATABILITY (mm)
WALL MOUNTING
0
TO +15
ULPT-X technical data sheet
800.MOUNT.IT (800.668.6848)
11022011
Dimensions WxDxH Inches (mm) Wt lbs (kg) Qty
Box
15.9 x 48.4 x 3 (405x1230x75) 28.7 (13) NA
MC
NA NA NA
Packaging UPC MC UPC
Americas
728901019531 NA
International
728901019616 NA
Box Contents Qty
Wall plate 1
Vertical tilt rail with kickstand 2
Security clip 2
Bottom rail cover 1
Top rail cover 1
Box Contents Qty
Complete mount installation hardware kit 1
Complete panel attachment hardware kit 1
Installation template 1
Instruction manual 1


