User's Manual

Jennic
JennicJennic
Jennic
16 JN-DS-JN5148-001-Myy 1v1 © Jennic 2009
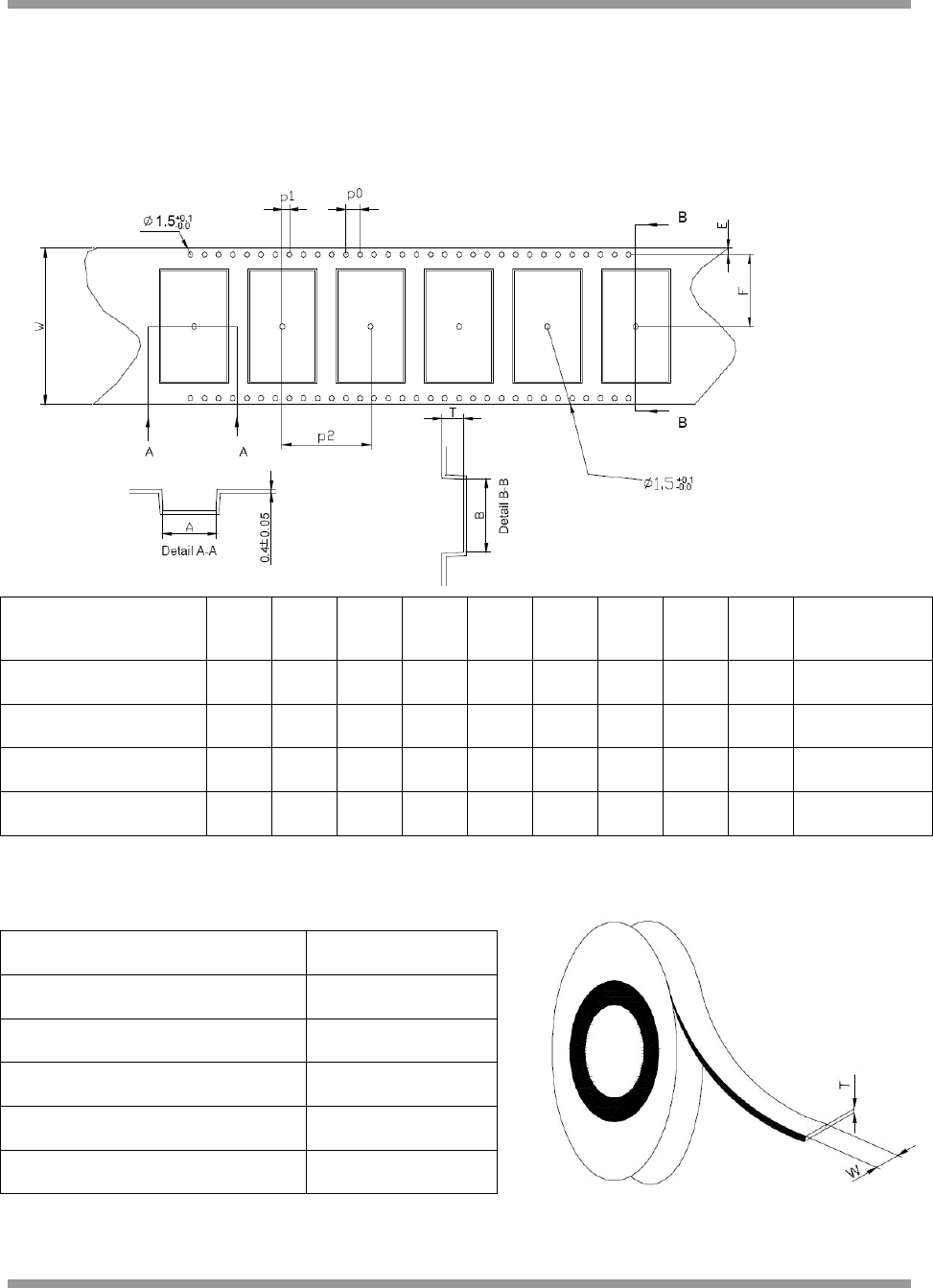
A.4 Tape and Reel Information:
A.4.1 Tape Orientation and dimensions
All dimensions are in mm
Module type: A B W F E P0 P1 P2 T Cover Tape
width (W)
JN5148-001-M00 18.4 32.6 44 20.2 1.75 4.0 2.0 24.0 3.4 37.5
JN5148-001-M03 18.4 30.4 44 20.2 1.75 4.0 2.0 24.0 3.4 37.5
JN5148-001-M04 18.5 40.9 56 26.2 1.75 4.0 2.0 24.0 3.4 49.5
Tolerance ±0.1 ±0.1 ±0.3 ±0.1 +0.1 ±0.1 ±0.1 ±0.1 ±0.1 ±0.1
A.4.2 Cover tape details
Thickness (T) 0.061mm
Surface resistivity (component side) 10
4
to 10
7
Ohms/sq
Surface resistivity (component side) Non-conductive
Backing type: Polyester
Adhesive type: PSA
Sealing: Room ambient










