Datasheet

7.61
Plug-in units with static cantilever handles
Part number in bold face type: ready for despatch within 2 working days
Part number in normal type: ready for despatch within 10 working days
Main Catalogue
E 03/2009
Tex t
Tex t
Dimension
drawings
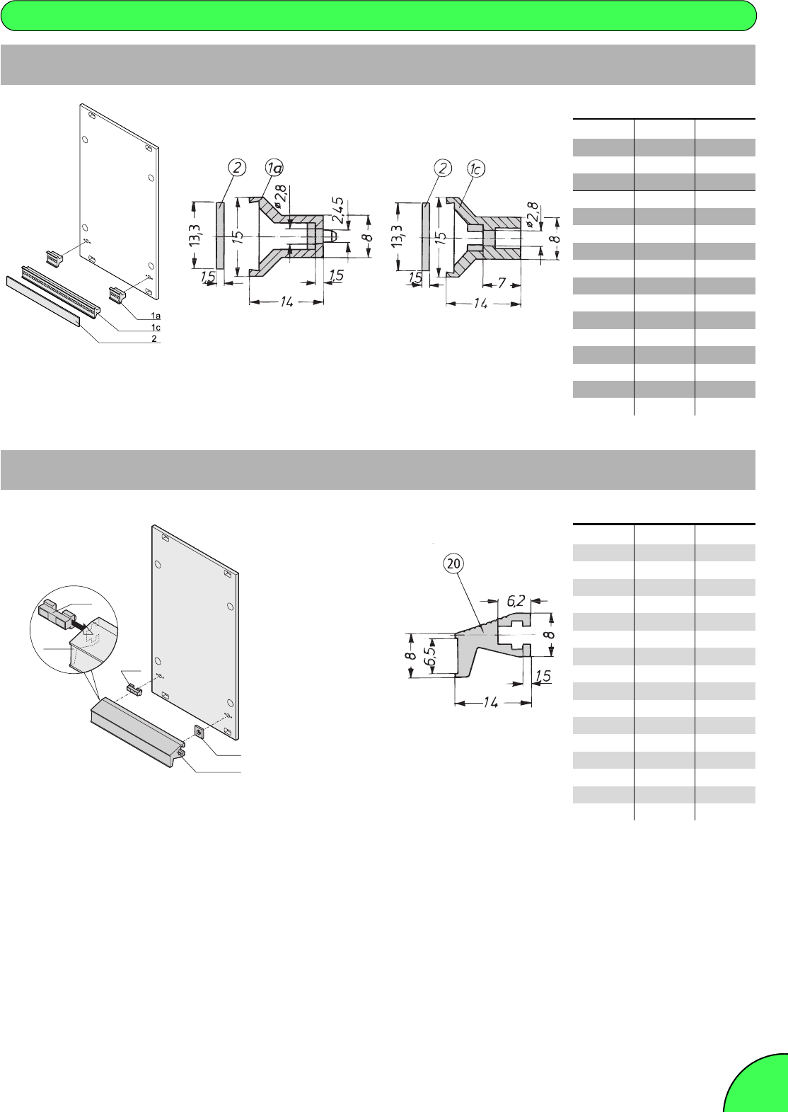
Static plastic cantilever handles
Dimensions table
Pos.
Width Width
HP mm
1a 3 13.8
1a 4 18.9
1c 5 24.0
1c 6 29.0
1c 7 34.1
1c 8 39.2
1c 9 44.3
1c 10 49.4
1c 12 59.6
1c 14 69.7
1c 21 105.2
1c 28 140.8
1c 40 201.8
1c 42 212.0
1c 61 308.5
bga46447 a4-328a a4-328c
dimension
drawings
Aluminium extrusion handles
Dimensions table
Pos.
Width Width
HP mm
20 3 13.8
20 4 18.9
20 5 24.0
20 6 29.0
20 7 34.1
20 8 39.2
20 9 44.3
20 10 49.4
20 12 59.6
20 14 69.7
20 21 105.2
20 28 140.8
20 40 201.8
20 42 212.0
20 - 1000.0
04602069 a4-328d
20
22
21
21
21
Buch Steckbgr.book Seite 61 Samstag, 18. April 2009 2:52 14