
NF/NM -4/8 Installatie en gebruikers handleiding
Installatie
Version V0203
14
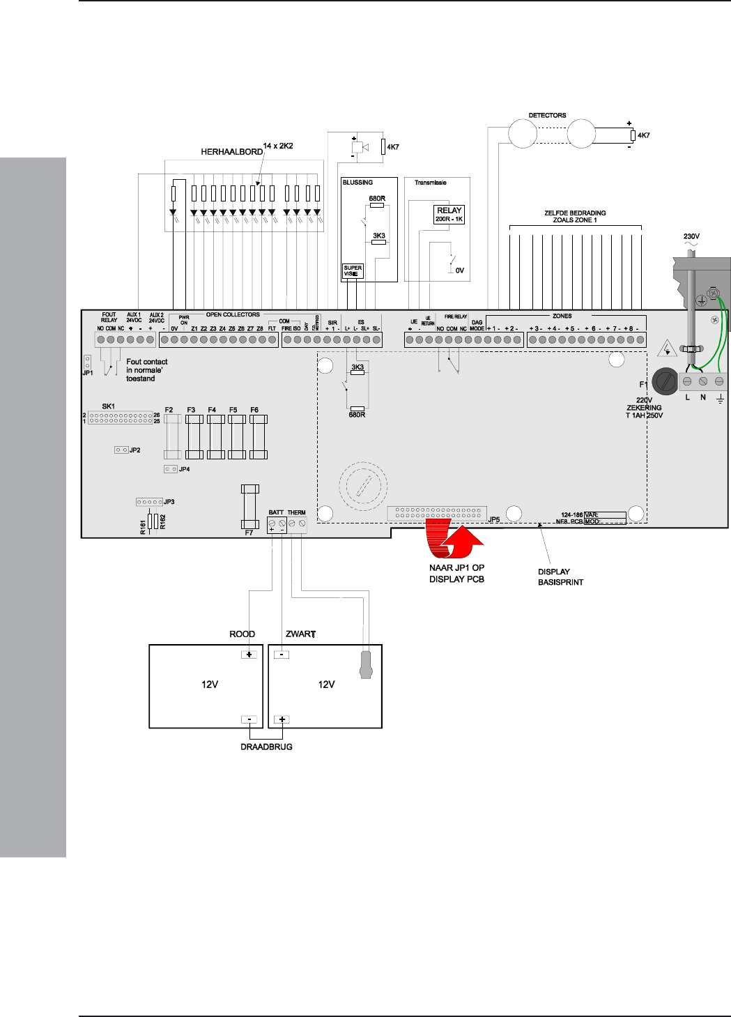
Bedradings overzicht
Fuses:
F1 - Netspanning T 1AH 250V
F3 - Auxiliaire 24VDC uitgangen 0.5A
F4 - FBF 0.5A
F5 - Sirene uitgang 1A
F6 - Transmissie uitgang 0.5A
F7 - Batterijlader 2A anti surge, HRC, keramisch.