User manual
Chapter 1 Introducing the Business Communications Manager 51
Installation and Maintenance Guide
Table 5 provides a table of weights and measurements of the base unit.
Table 5 Basic BCM1000 base unit specifications
Figure 6 shows the location of the hardware components in the BCM1000 2.0 versions. Nortel
Networks recommends that you know the location of the different components before working
with the system.
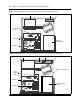
Figure 7 on page 52 and Figure 8 on page 52 show two possible configurations of the BCM1000
hardware.
Figure 6 BCM1000 interior components for standard system (pre-2.5)
Size • depth: 18.28 inches (with bezel in place)
• width: 17.51 inches
• height: 7.05 inches
Weight • no PCI cards or modules: approx 23 lbs.
• loaded system: approx. 31 lbs. (varies, depending on power supply)
Media bay module cabinet
Clock/
calendar
battery
PCI card slots
Fan
Power supply
DIMM slots
Hard disk










