Business Communications Manager Installation and Maintenance Guide
16 Chapter 1 Introducing the Business Communications Manager
N0008587 01
Computer components
The BCM1000 computing functions are supported by the following hardware:
• memory: 256 MB SDRAM; 128 MB SDRAM added for 2.0 upgrades.
•hard disk: 20 GB hard disk (2.5 hardware); 8.4 GB hard disk (2.0 hardware)
Software version note: Systems running software more recent than BCM 2.5.1 require a
20 GB hard disk with specific partitioning. Refer to the upgrade guide accompanying any
software upgrade for specific system requirements.
• four PCI slots containing one MSC and four possible combinations of WAN, LAN, and/or
modem cards
• four PEC slots on the MSC, each of which can contain one Processor expansion card (PEC) I
or PEC III (2.5) (basic 2.5 systems are delivered with two PEC III cards)
IP telephony note: The IP telephony feature requires PEC IIIs.
Hardware components
The main component of the Business Communications Manager system is the BCM1000. This
hardware controls all data and telephony tasks, such as call processing, voice messaging, and data
routing.
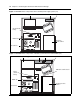
Figure 2 shows the functional hardware as seen from the front of the BCM1000.
Figure 2 External functional hardware, BCM1000
Note: Some of the components described in this document are not available in all
countries. Ask your Business Communications Manager sales agent for information about
availability.
Modem card
LAN card
WAN card
MSC
Media bay modules
This is an example of one of four possible profiles
RAID board
(Mirrored disk systems)










