Installation guide

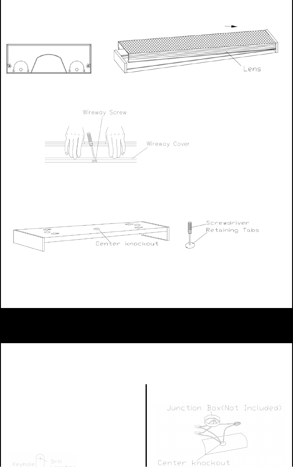
to the lens. To remove the lens, carefully slide the lens to one end of the fixture. Gently grab
the lens and pull it out.
2) Squeeze wireway cover at both ends on both sides to release from the fixture housing.
Remove the cover and place aside on a flat surface for later use.
3) Carefully turn the fixture housing over and locate the center knockout on the housing. Make
sure the fixture housing is supported on the underside and then by placing a screwdriver
on the edge of the knockout ( opposite retaining tabs ), strike the screwdriver end by the
use of a hammer ( SAFETY GLOVES AND GLASSES SHOULD BE WORN WHEN
REMOVING ANY KNOCKOUTS ). Grasp the knockout with the use of pliers and flex in
a back and forth motion until the tab breaks off.
4) Coordinate mounting position in the room. Supply wires of house wires will extend from the
" JUNCTION BOX " located in the ceiling. If you not have a " JUCTION BOX " in the ceiling,
consult a qualified professional electrician.
Check both the fixture and house for loose or damaged wiring. If the wiring is loose or
damaged, it must be repaired prior to the fixture installation. DO NOT PROCEED ON
UNTIL THE WIRING HAS BEEN FIXED OR REPLACED WITH NEW WIRES.
NOTE: This fixture is designed to be surfaced mounted on a drywall ceiling. Mounting
hardware requirements will depend on mounting method.
A) For mounting on drywall ceilings:
1) Lift fixture housing to the ceiling, positioning
the center knockout of the housing over
the junction box and parallel to the ceiling.
See Diagram 1.
2) Mark ceiling with a pencil for the drill hole
locations throuth the narrow portion on the 4
keyhole slots. See Diagram 2, 3.
MOUNTING OF THE LIGHT FIXTURE
CAUTION
INSTALLATION INSTRUCTIONS
Diagram 1




