Carpet Cleaner User Manual

12 SCRUBTEC 653B – 653BL – 651BCL – 661BL 9097058000(2)2009-10 A
ENGLISH USER MANUAL
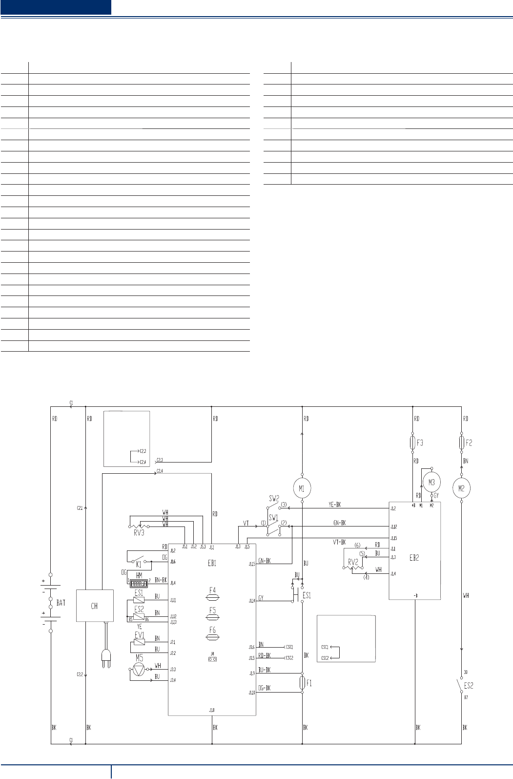
WIRING DIAGRAM (SCRUBTEC 653BL, SCRUBTEC 651BCL, SCRUBTEC 661BL)
(**)
(*)
P100128
Key
BAT 24 V battery
C1 Battery connector
C2 Battery charger connector
CH Battery charger (optional)
CSC Cylindrical brush deck sub-connector
EB1 Function electronic board
EB2 Drive system electronic board
ES1 Brush electromagnetic switches
ES2 Vacuum system relay
EV1 Detergent solenoid valve (optional)
F1 Deck fuse
F2 Vacuum system fuse
F3 Drive system fuse
F4 Signal circuit fuse
F5 Brush/pad-holder release fuse
F6 Pump fuse
HM Hour counter (optional)
K1 Ignition key
M1 Brush/pad-holder motor
M2 Vacuum system motor
M3 Drive system motor
M5 Detergent pump (optional)
RV2 Maximum speed potentiometer
RV3 Detergent % potentiometer (optional)
SW1 Brush/drive system enabling switch
SW2 Reverse gear switch
Only for machines with cylindrical brush deck(*)
Only for machines without on-board battery charger(**)
Colour codes
BK Black
BU Blue
BN Brown
GN Green
GY Grey
OG Orange
PK Pink
RD Red
VT Violet
WH White
YE Yellow










