Carpet Cleaner User Manual

12 SCRUBTEC 653B – 653BL – 651BCL – 661BL 9097058000(2)2009-10 A
NEDERLANDS GEBRUIKSAANWIJZING
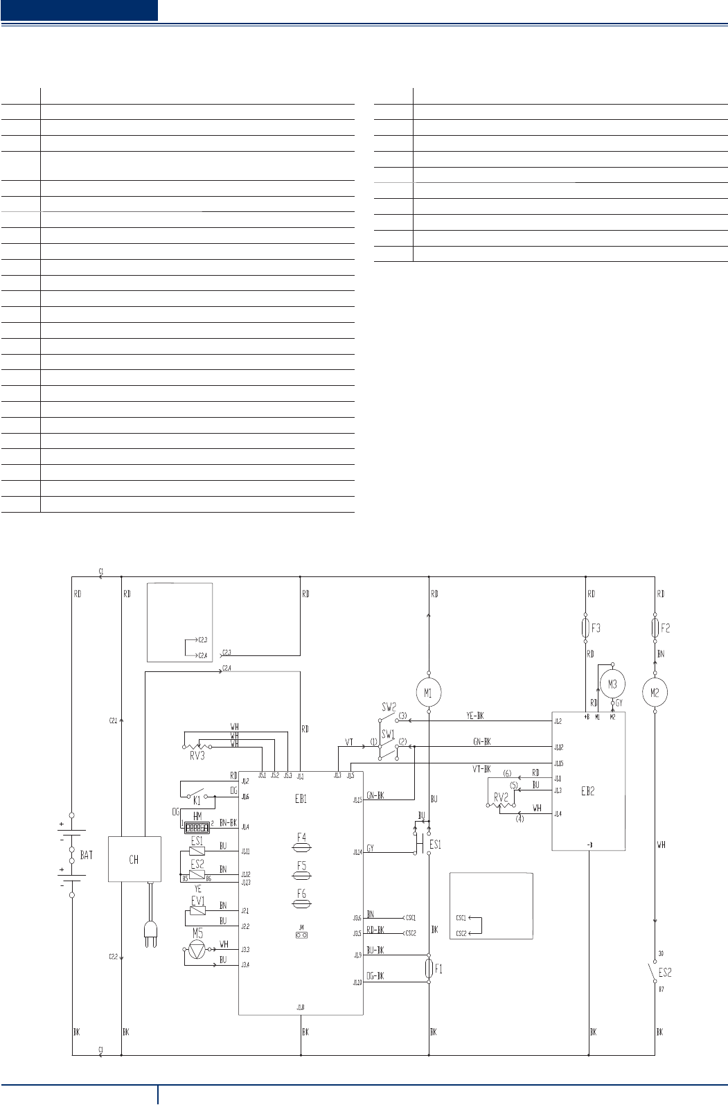
ELEKTRISCHE INSTALLATIE (SCRUBTEC 653BL, SCRUBTEC 651BCL, SCRUBTEC 661BL)
(**)
(*)
P100128
Legenda
BAT Accu 24 V
C1 Accustekker
C2 Stekker acculader
CH Acculader (optioneel)
CSC
Secundaire stekker voor schrobdek van houder voor
cilindrische borstels
EB1 Elektronische installatie regeling functies
EB2 Elektronische installatie aandrijfsysteem
ES1 Schakelaars motoren borstels
ES2 Relais aanzuigsysteem
EV1 Magneetklep reinigingsmiddel (optioneel)
F1 Zekering schrobdek
F2 Zekering aanzuigsysteem
F3 Zekering aandrijfsysteem
F4 Zekering signaleringscircuits
F5 Zekering ontkoppeling borstels/padhouder
F6 Zekering pompen
HM Urenteller (optioneel)
K1 Contactsleutel
M1 Motor borstel/padhouder
M2 Motor aanzuigsysteem
M3 Motor aandrijfsysteem
M5 Pomp reinigingsmiddel (optioneel)
RV2 Potentiometer maximale snelheid
RV3 Potentiometer % reinigingsmiddel (optioneel)
SW1 Bevestigingsknoppen borstels/aandrijving
SW2 Knop achteruit
Alleen voor machines met schrobdek voor houder voor (*)
cilindrische borstels
Alleen voor machines zonder interne acculader(**)
Kleurcodering
BK Zwart
BU Blauw
BN Bruin
GN Groen
GY Grijs
OG Oranje
PK Roze
RD Rood
VT Paars
WH Wit
YE Geel










