Carpet Cleaner User Manual

9097058000(2)2009-10 A SCRUBTEC 653B – 653BL – 651BCL – 661BL 11
GEBRUIKSAANWIJZING
NEDERLANDS
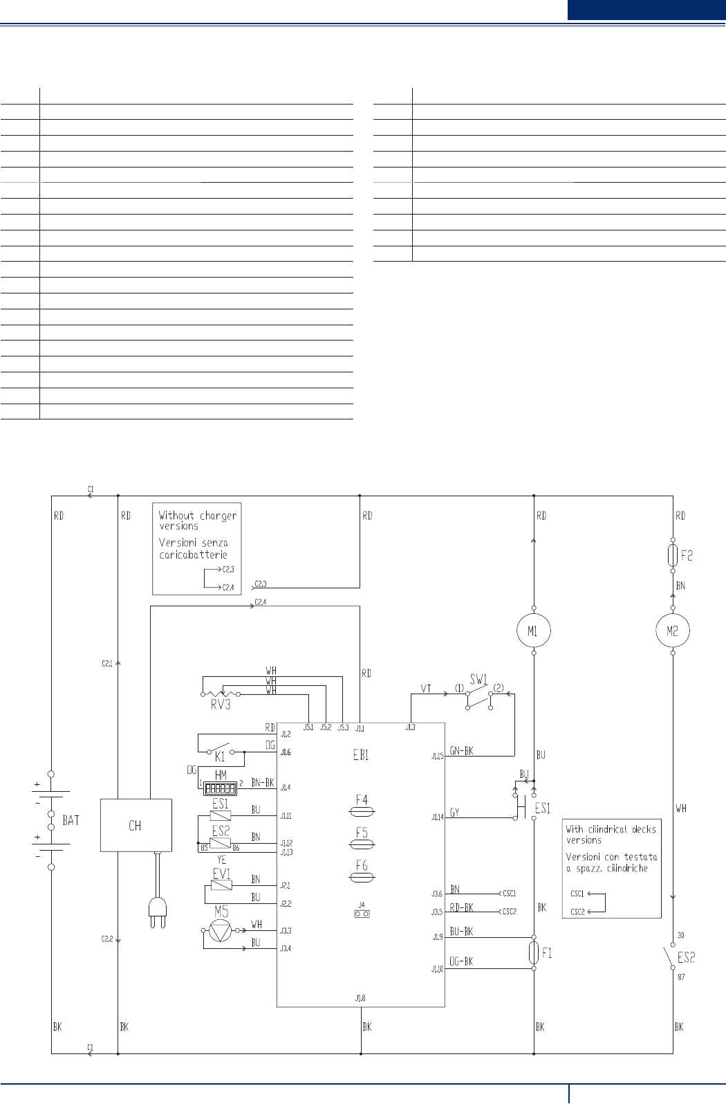
ELEKTRISCHE INSTALLATIE (SCRUBTEC 653B)
Legenda
BAT Accu 24 V
C1 Accustekker
C2 Stekker acculader
CH Acculader (optioneel)
CS Stekker schrobdek
EB1 Elektronische installatie functies
ES1 Schakelaars motoren borstels
ES2 Relais aanzuigsysteem
EV1 Magneetklep water
F1 Zekering schrobdek
F2 Zekering aanzuigsysteem
F4 Zekering signaleringscircuits
F5 Zekering aankoppeling borstels
F6 Zekering pompen
HM Urenteller (optioneel)
K1 Contactsleutel
M1 Motor borstel/padhouder
M2 Motor aanzuigsysteem
M5 Pomp reinigingsmiddel (optioneel)
RV3 Potentiometer % reinigingsmiddel (optioneel)
SW1 Bevestigingsknoppen borstels/aandrijving
Kleurcodering
BK Zwart
BU Blauw
BN Bruin
GN Groen
GY Grijs
OG Oranje
PK Roze
RD Rood
VT Paars
WH Wit
YE Geel
P100127










