Installation Guide

2
W415-0713 / A / 11.09.10
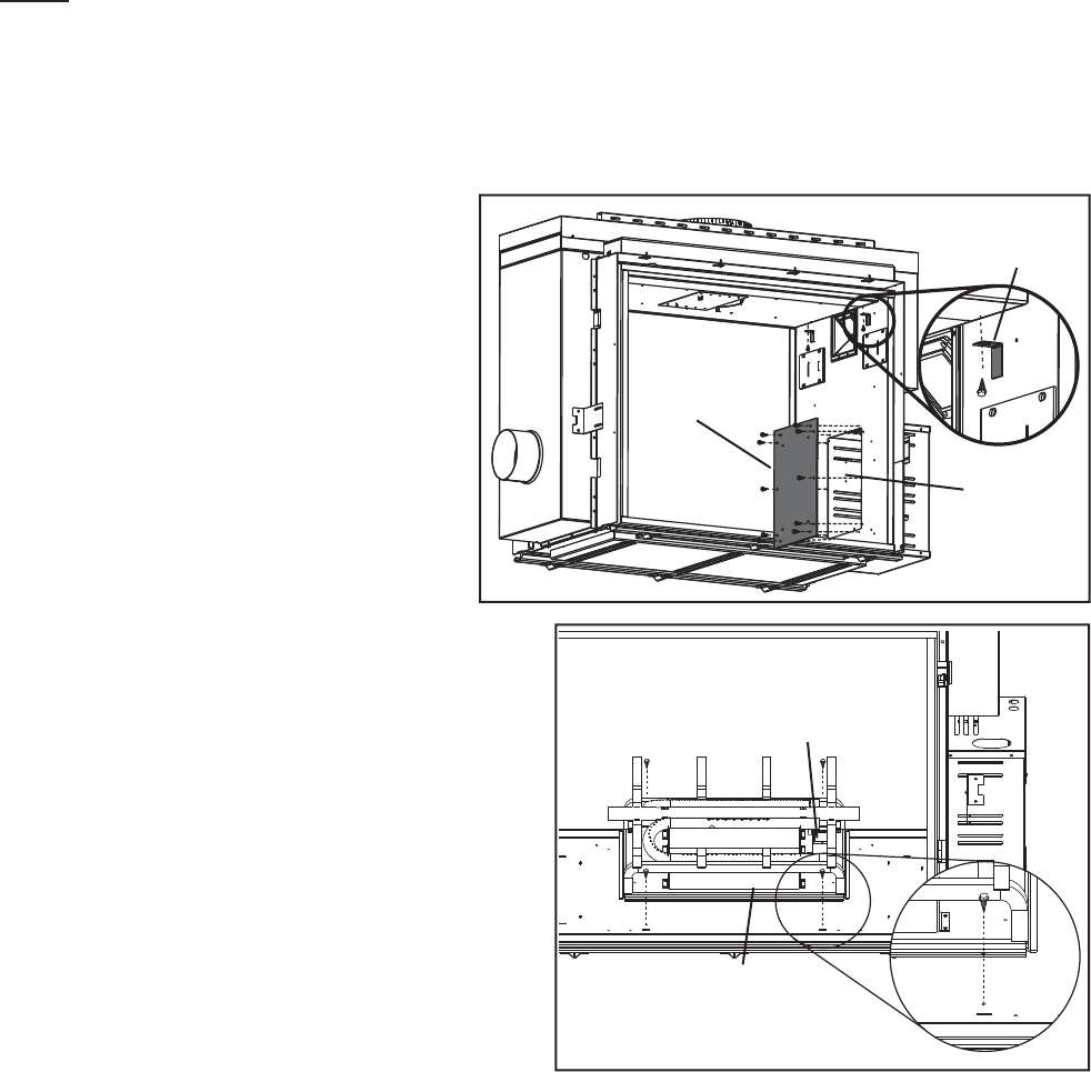
A. Once either door is removed (see
Installation Instructions), remove the
valve access panel and the 4 retaining
brackets located at the top of the fi rebox.
A. Attach the burner assembly to the fi rebox
base with the screws supplied, making sure
the pilot assembly is closest to the valve
access opening.
This burner and log assembly are approved for use in the HD81 gas appliance only. They are not approved for
use as a stand alone appliance or in conjunction with any other appliance.
1.0 GENERAL INFORMATION
2.0 INSTALLATION
2.1 ACCESS PANEL
2.2 BURNER ASSEMBLY
1.0 GENERAL INFORMATION 2
2.0 INSTALLATION 2
2.1 ACCESS PANEL 2
2.2 BURNER ASSEMBLY 2
2.3 BULKHEADS 3
2.4 NIGHT LIGHT™ INSTALLATION 4
2.5 HEARTH PANEL INSTALLATION 4
2.6 LOG PLACEMENT 5
2.7 CHARCOAL LUMPS 6
2.8 CHARCOAL EMBERS 6
2.9 VERMICULITE 7
2.10 GLOWING EMBERS 7
3.0 ADJUSTMENT 7
3.1 FLAME CHARACTERISTICS 7
3.2 VENTURI ADJUSTMENT 7
4.0 REPLACEMENTS 8
NOTE: Changes, other than editorial, are denoted by a line in the margin.
TABLE OF CONTENTS
Retaining
Brackets
Access
Panel
Burner
Assembly
Valve
Access
Opening
Pilot
Assembly










