- NAPOLEON VENTED GAS FIREPLACES INSTALLATION AND OPERATION INSTRUCTIONS BGNV42N , BGNV42P

13
W415-0377 / C / 09.23.05
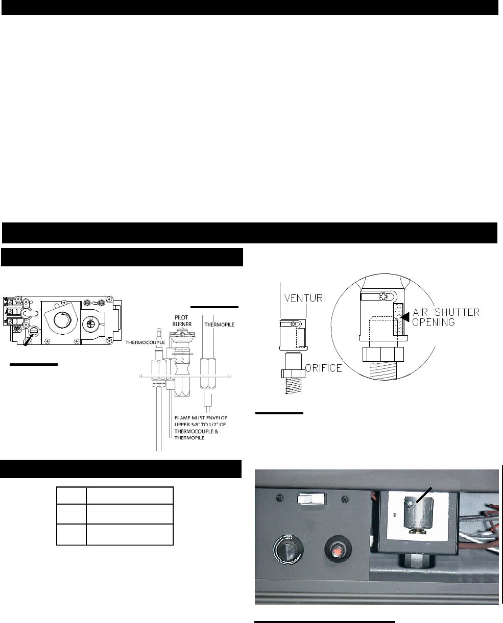
Adjust the pilot screw to provide properly sized flame. Turn
in a clockwise direction to reduce the gas flow.
Closing the air shutter will cause a more yellow flame, but
can lead to carboning. Opening the air shutter will cause a
more blue flame, but can cause flame lifting from the burner
ports. The flame may not appear yellow immediately; allow
15 to 30 minutes for the final flame colour to be estab-
lished.
AIR SHUTTER ADJUSTMENT MUST ONLY BE DONE
BY A QUALIFIED GAS INSTALLER!
Air shutter is accessed beside gas valve
3. Check to see that all burner ports are burning. Clean out
any of the ports which may not be burning or are not burn-
ing properly.
4. Check to see that the pilot flame is large enough to
engulf the thermocouple and thermopile and reaches to-
ward the burner with the third jet.
5. Replace the cleaned logs.
6. Check to see that the main burner ignites completely on
all openings when the gas knob for the burner is turned on.
A 5 to 10 second total light-up period is satisfactory. If igni-
tion takes longer, consult your Napoleon dealer / distribu-
tor.
7. Check that the gasketing on the sides, top and bottom
of the door is not broken or missing. Replace if necessary.
P
I
P
I
PILOT SCREW
L
O
T
N
O
L
O
T
H
I
L
O
F
F
O
FIGURE 28
FIGURE 30
FIGURE 30
Turn off the gas and electrical power before servicing
the fireplace.
CAUTION: Label all wires prior to disconnection when serv-
icing controls. Wiring errors can cause improper and dan-
gerous operation. Verify proper operation after servicing.
This fireplace and its venting system should be inspected
before use and at least annually by a qualified service per-
son. The fireplace area must be kept clear and free of com-
bustible materials, gasoline or other flammable vapours and
liquids. The flow of combustion and ventilation air must not
be obstructed.
1. In order to properly clean the burner and pilot assembly,
remove the logs to expose both assemblies.
2. Keep the control compartment, logs, burner, air shutter
opening and the area surrounding the logs clean by vacu-
uming or brushing, at least once a year.
MODEL BGNV42
NG
1/8"
LP
5/16"
FIGURE 31 (not exactly as shown)
MAINTENANCE
ADJUSTMENTS
PILOT BURNER ADJUSTMENT
VENTURI ADJUSTMENT
FIGURE 29
VENTURI