- NAPOLEON natural gas and propane OPERATING INSTRUCTIONS B36DFN, B36DFP

24
W415-0484 / A / 07.26.06
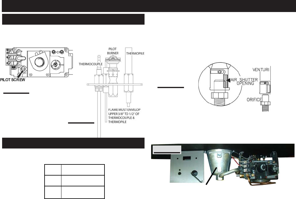
Adjust the pilot screw to provide properly sized flame. Turn
in a clockwise direction to reduce the gas flow.
Air shutters have been factory set open according to the
chart below:
These settings are for the maximum horizontal vent run.-
Adjustment may be required depending on fuel type, vent
configuration and altitude.
Closing the air shutter will cause a more yellow flame, but
can lead to carboning. Opening the air shutter will cause a
more blue flame, but can cause flame lifting from the burner
ports. The flame may not appear yellow immediately; allow
15 to 30 minutes for the final flame colour to be estab-
lished.
Air shutter adjustment must only be done by a
qualified installer!
To access the air shutter, remove the two screws that se-
cure the cover to the air housing, taking care not to dam-
age the gasket.
FIGURE 48
FIGURE 49
FIGURE 47
VENTURI COVER
FIGURE 50
ADJUSTMENTS
PILOT BURNER ADJUSTMENT
VENTURI ADJUSTMENT
AIR SHUTTER
NG
1/
16
"
LP
3
/
8
"