- NAPOLEON natural gas and propane OPERATING INSTRUCTIONS B36DFN, B36DFP

13
W415-0484 / A / 07.23.06
H
1
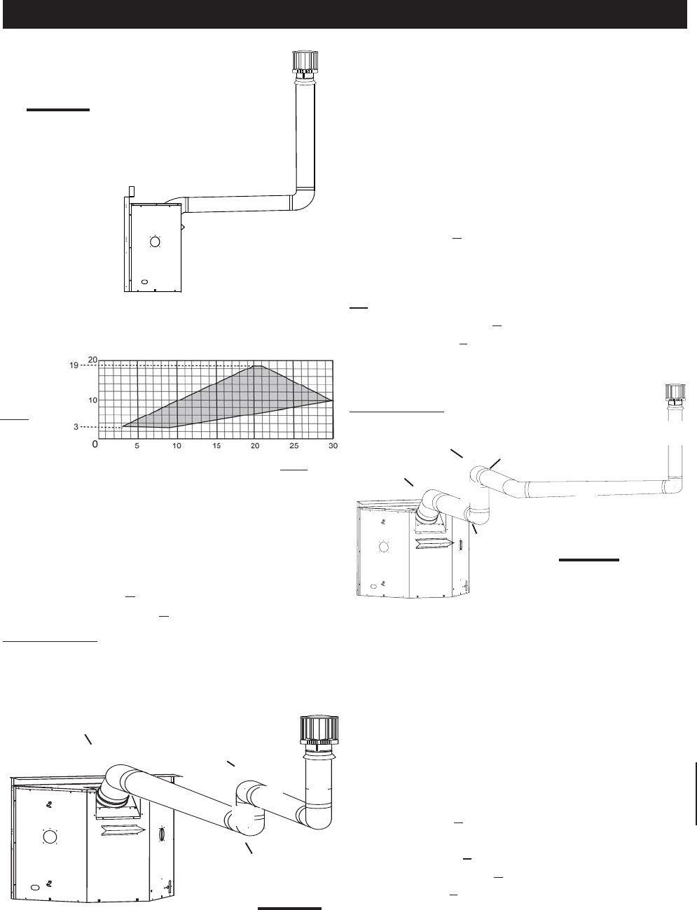
VERTICAL TERMINATION
For vent configurations requiring more than one 45º and
one 90° elbow , the following formulas apply:
Formula 1: H
T
< 3V
T
Formula 2: H
T
+ V
T
< 40 feet
Example 4:
when (H
T
) > (V
T
)
Simple venting configurations
See graph to determine the required vertical rise V
T
for the
required horizontal run H
T
.
V
1
=1 ft
V
2
= 1.5 ft
V
T
=
V
1
+
V
2
=
1 + 1.5 = 2.5 ft
H
1
=6 ft
H
2
=2 ft
H
R
= H
1
+ H
2
= 6 + 2 = 8 ft
H
O
= .03(one 45º elbow + three 90º elbow - 135º)
= .03(45 + 90 + 90 + 90 - 135) = 5.4 ft
H
T
=H
R
+ H
O
= 8 + 5.4 = 13.4 ft
H
T
+ V
T
= 13.4 + 2.5 = 15.9 ft
Formula 1: H
T
< 3V
T
3V
T
=
3 x
2.5 = 7.5 ft
13.4 > 7.5
Since this formula is not met, this vent configuration is
unacceptable.
Formula 2: H
T
+ V
T
< 40 feet
15.9 < 40
Since only formula 2 is met, this vent configuration is unac-
ceptable and a new fireplace location or vent configuration
will need to be established to satisfy both formulas.
Example 5:
V
1
=1.5 ft
V
2
=8 ft
V
T
=
V
1
+
V
2
=
1.5 + 8= 9.5 ft
H
1
=1 ft
H
2
=1 ft
H
3
=10.75 ft
H
R
= H
1
+ H
2
+ H
3
= 1 + 1 + 10.75 = 12.75 ft
H
O
= .03(three 90° elbows + two 45° elbow - 135°)
= .03(90 + 90 + 90 + 45 + 45 - 135) = 6.75 ft
H
T
=H
R
+ H
O
= 12.75 + 6.75 = 19.5 ft
H
T
+ V
T
= 19.5 + 9.5= 29 ft
Formula 1: H
T
< 3V
T
3V
T
=
3 x
9.5 = 28.5 ft
19.5 < 28.5
Formula 2: H
T
+ V
T
< 40 feet
29 < 40
Since both formulas are met, this vent configuration is ac-
ceptable.
REQUIRED
VERTICAL
RISE IN
FEET (V
T
)
HORIZONTAL VENT RUN PLUS OFFSET IN FEET (H
T
)
FIGURE 13
FIGURE 11
45°
45°
90°
90°
H
1
90°
H
3
The shaded area within the lines represents acceptable
values for H
T
and V
T
.
90°
FIGURE 12
45°
V
1
90°
V
2
90°
H
2
V
2
V
1
H
2