Manual
Manuals
Brands
Multiquip Manuals
Generators
DCA70SSIU2
71
72
73
74
75
76
77
78
79
80
P
A
GE 76 — DCA70SSIU2 60 HZ GENERA
T
OR • OPERA
TION AND P
ARTS MANU
AL — REV
.
#0 (05/29/09)
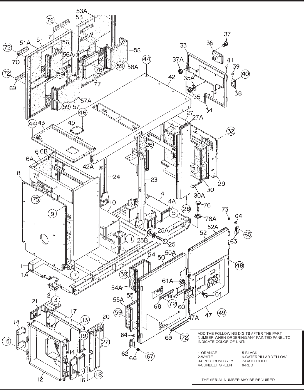
ENCLOSURE ASSY
. (CONTINUED)
1
...
...
74
75
76
77
78
...
...
84