Manual

DCA70SSIU2 60 HZ GENERATOR • OPERATION AND PARTS MANUAL — REV. #0 (05/29/09) — PAGE 17
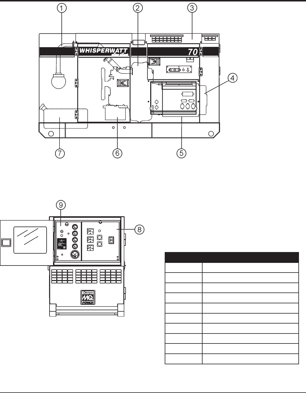
MAJOR COMPONENTS
Major ComponentsFigure 3.
Generator Major ComponentsTable 4.
ITEM NO. DESCRIPTION
1 Muffl er Assembly
2 Engine Assembly
3 Enclosure Assembly
4 Generator Assembly
5 Output Terminal Assembly
6 Battery Assembly
7 Fuel Tank Assembly
8 Generator Control Panel Assembly
9 Engine Operating Panel Assembly










