Manual

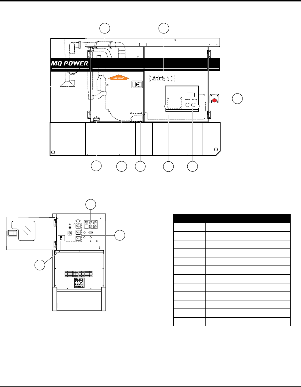
MAJOR COMPONENTS
Low Oil Pressre
High temp.
Over Crank
Over Speed
Engine Started
ECU
Intergrated Gauge Control
R
20
9
21
3
4
678
10
11
5
Like it never even happened.
R
1 Muffler Assembly
2 Output Terminal Board Assembly
3 Emergency Stop Switch Assembly
4 Generator Assembly
5 Output Terminal Panel Assembly
6 Battery Assembly
7 Engine Assembly
8 Fuel Tank Assembly
9 Gauge Unit Assembly
10 Generator Control Panel Assembly
11 Circuit Breaker Assembly
Figure 3. Major Components










