User Guide

DCA-600SSV — OPERATION AND PARTS MANUAL — REV. #0 (07/13/09) — PAGE 7
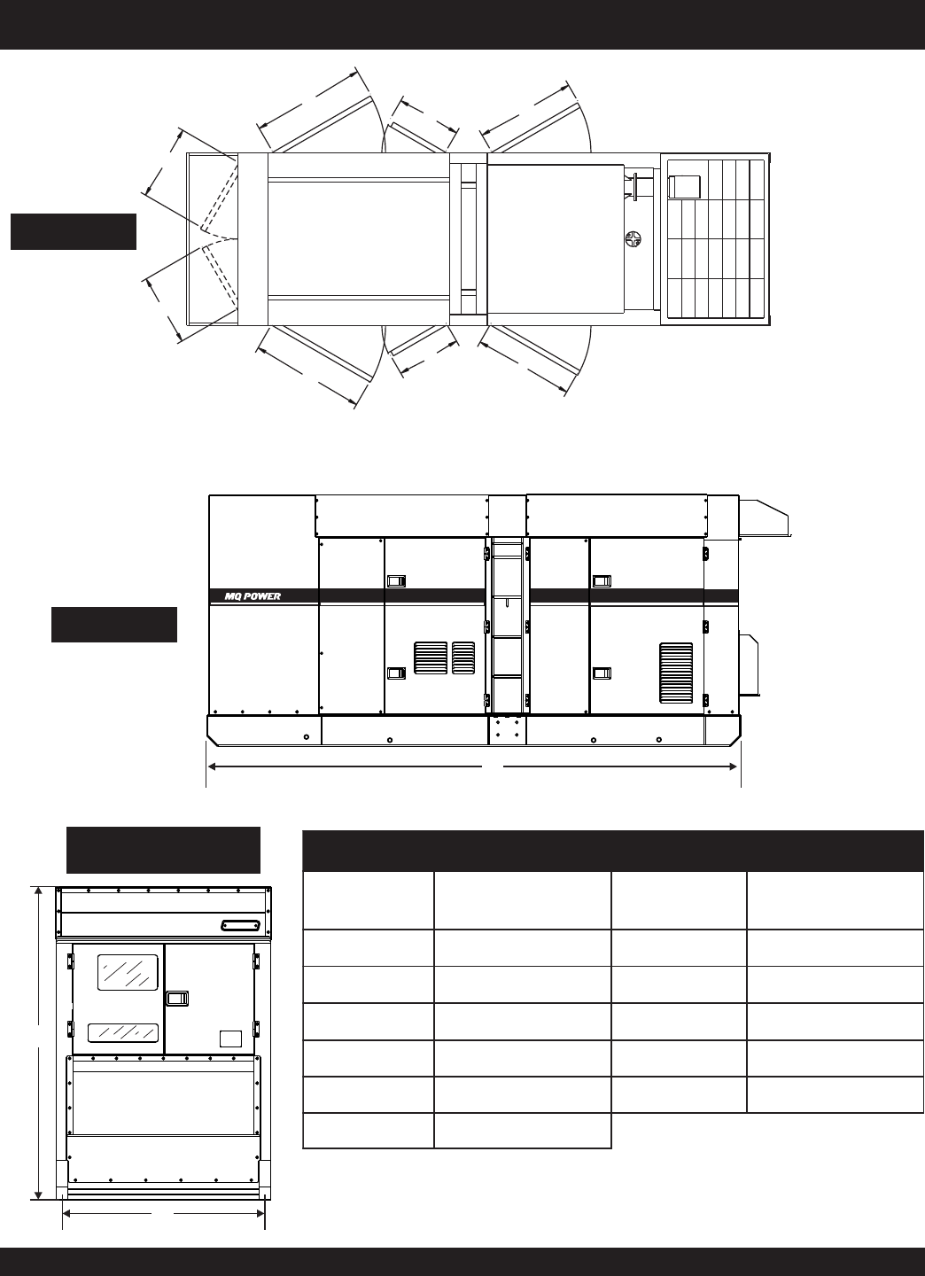
DCA-600SSV — DIMENSIONS (TOP, SIDE AND FRONT)
SIDE VIEW
I
REAR VIEW
(CONTROL PANEL VIEW)
K
J
TOP VIEW
E
D
C
F
G
H
B
A
600
Figure 1. Dimensions
SNOISNEMID.3ELBAT
ecnerefeR
retteL
).mm(.ninoisnemiDretteLecnerefeR).mm(.ninoisnemiD
A).mm586(.ni79.62G ).mm044(.ni23.71
B).mm596(
.ni63.72H ).mm000,1(.ni73.93
C).mm000,1(.ni73.93I ).mm007,4(.ni40.581
D).mm044(.ni23.71J ).mm500,2(.ni9.87
E).mm099(
.ni89.83K).mm156,1(.ni56
F).mm099(.ni89.83










