Specifications

See the "Designer Collection Tubs Installation & Operation Manual" included with tub delivery or go to mtibaths.
com/support/installation_operation/manuals for all the information necessary to install and operate the tub.
MTI's Customer Service Department is available Monday-Friday 8am-6pm EST at
800-783-8827 or customerservice@mtibaths.com to answer any
questions pertaining to ordering or installation.
ELECTRICAL COMPONENTS & SPECIFICATIONS
Required Electrical Service - 110 Volt
Hydrotherapy Package Components Included GFCI
Standard Whirlpool 2-bhp pump 1-15 amp
Ultra Whirlpool 2 2-bhp pumps, inline heater 2-20 amp
Air Massage heated blower 1-15 amp
Air Massage Elite heated blower, chromatherapy 1-15 amp
Air Massage with
Standard Whirlpool
2-bhp pump, heated blower 2-15 amp
Air Massage with Ultra
Whirlpool
2 2-bhp pumps, inline heater,
heated blower
2-20 amp
Air Massage Elite with
Standard Whirlpool
2-bhp pump, heated blower,
chromatherapy
2-15 amp
Air Massage Elite with
Ultra Whirlpool
2 2-bhp pumps, inline heater,
heated blower, chromatherapy
2-20 amp
For electrical requirements of tub options, see specific options specs
CSA Certified C/US; ANSI Z124.1 for plastic tubs and ANSI 112.19.7 for whirlpool
components.
IMPORTANT ORDERING & INSTALLATION INFORMATION:
• Before ordering or installing, please consider future access to equipment.
• Add bedding compound to fully level and support bottom of tub.
• Tubs equipped with an air bath or a pre-leveled foam base are designed to rest on the floor
without bedding compound, provided the floor is level.
• Overall tub height is increased by approx. 2-3" when tub is equipped with any air bath
package or when pre-leveled foam base or frame system is ordered.
• Please measure tub on-site before building tub decking.
• If you are planning to use a glass enclosure, MTI must be advised when ordering for possible
relocation of controls.
• Suction and control locations may vary.
• Specifications and configurations are subject to change without notice.
• Measurements are +1/2" and are subject to change without notice.
• Measurements herein supersede all others published prior to publication date shown below.
1 of 3
Eective 032818 ©2018 by MTI Baths, Inc. Modification Rights Reserved.
CSA # MTDS-192
GENERAL SPECIFICATIONS:
Material - Acrylic
Installation - Drop-in or Undermount
Plumbed Weight - 135 lbs / 61 kg
Soaker Weight - 115 lbs / 52 kg
Average Fill - 42 gal to above jet level
Maximum Fill - 90 gal to overflow
NOTE: Filling this tub to the maximum may require an
above average size or dedicated water heater.
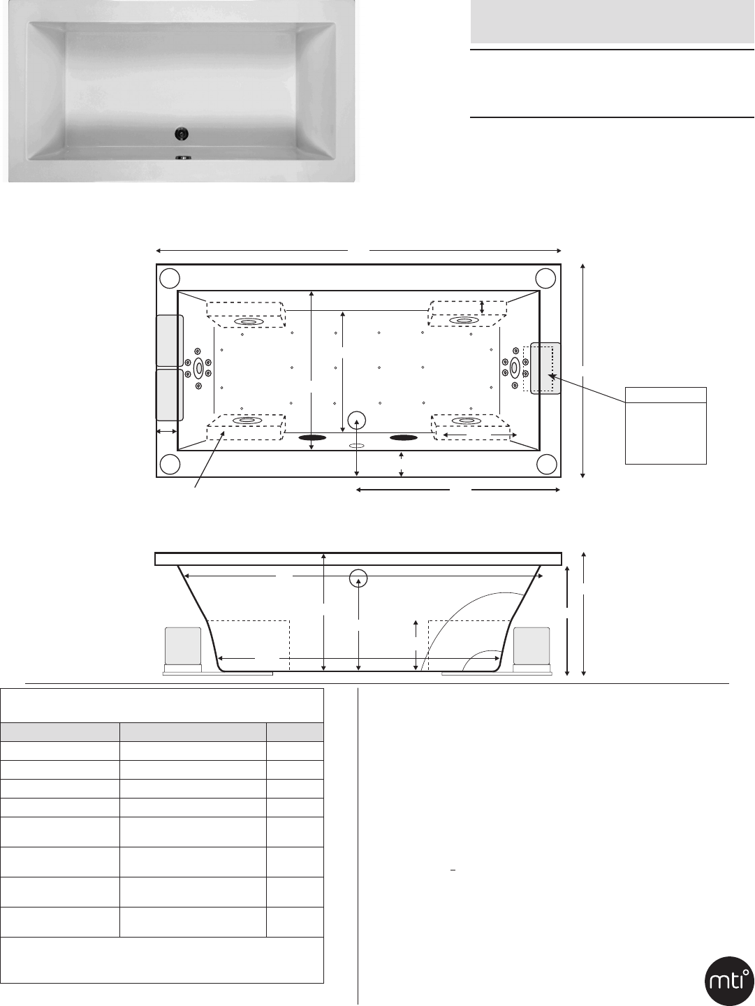
Numbered areas on tub deck represent possible locations to install cleaning systems, faucets and other fixtures.
Shown with Air Massage and Ultra Whirlpool Package.
Designer Collection Tubs
Model # 192
Compliance Label
Model MTXXXX
Made in USA
Complies with
ANSI Z124.1-1995
CSA Certified C/US
Andrea
®
22
66" x 36" x 20.5"
56"
43"
20½"
18¾"
16½"
19 "
115°
98°
28½"
24"
36"
3¾"
3¼"
66"
9¼"
33"
2½"
Optional Integral Armrests
14
½
"
1
2
3 4
7"
IMPORTANT:
Air baths and tubs with
a pre-leveled foam base
or frame system add 2-3"
to overall tub height.



