Specification Sheet
Table Of Contents

Compliance Label
Model MTXXXX
Made in USA
Complies with
ANSI Z124.1-1995
CSA Certified C/US
Features integral front skirting, armrests & factory
installed tile flange on 3 sides.
MTI BASICS® Tubs
GENERAL SPECIFICATIONS:
NOTE: Filling this tub to the maximum may require
an above average size or dedicated water heater.
Eective 010119 ©2019 by MTI Baths, Inc. Modification Rights Reserved.
CSA Certified C/US; ANSI Z124.1
CSA Certified C/US; ANSI 112.19.7
Required Electrical Service - 110 Volt
Air Bath or Whirlpool - 1-15 amp GFCI
Soaker - Inline Heater - 1-15 amp GFCI
Air Bath - Inline Heater - 1-15 amp GFCI
Whirlpool - Inline Heater - 1-15 amp GFCI
ELECTRICAL SPECIFICATIONS IMPORTANT ORDERING & INSTALLATION INFORMATION:
˚
Before ordering or installing, please consider future access to all equipment.
˚
Please measure tub on-site before building tub decking.
˚
Add bedding compound to fully level and support bottom of tub.
˚
Tubs equipped with an air bath or a pre-leveled foam base are designed to rest on the floor
without bedding compound, provided the floor is level.
˚
Overall tub height is increased by approx. 2-3" when tub is equipped with any air bath package or
when pre-leveled foam base or framing system is ordered.
˚
Jet, pump & blower locations are predetermined and cannot be changed.
˚
Suction and control locations may vary.
˚
Options listed cannot be combined with Designer Collection options.
˚
Specifications and configurations are subject to change without notice.
˚
Measurements are +1/2" and are subject to change without notice.
˚
Measurements herein supersede all others published prior to publication date shown below.
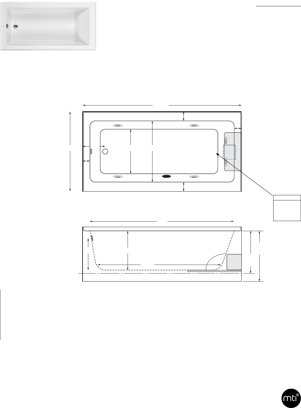
Available in two dierent heights,
see line art to right:
˚
19” height allows for an above
floor rough-in (AFR)
˚
16” height complies with ADA
regulations (ADA)
˚
Tile flange height = 1⁄”
59½"
8¾"
30"
54"
2¾"
3½"
3½"
2¾"
46¼"
112°
19"
AFR
16"
ADA
12" 14¼"
22¾"
17"
CSA # MTIS-IS6030
Shown with Whirlpool Package
Installation: Alcove
Material: Acrylic
Plumbed Weight: 105 lbs / 48 kg
Soaker Weight: 85 lbs / 39 kg
Average Fill: 32 gal to above jet level
Maximum Fill: 39 gal to overflow
59.5" x 30" x 19" / 16”
MBISC6030A/D


