The Signature Series is NOT designed for amateur installation. Installation SHOULD be performed by an authorized technician. Please read this manual carefully before installation and keep it for future reference. Owner & Installation Manual Signature Series MGD*96SE*XA Gas Furnace Due to updates and constantly improving performance, the information and instructions within this manual are subject to change without notice. Please visit www.mrcool.
INSTALLATION INSTRUCTIONS Warm Air Gas Furnace Downflow Air Discharge MGD*96SE*XA This manual must be left with the homeowner for future reference. This is a safety alert symbol and should never be ignored. When you see this symbol on labels or in manuals, be alert to the potential for personal injury or death. Table of Contents WARNING Improper installation, adjustment, alteration, service or maintenance can cause property damage, personal injury or loss of life.
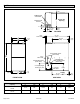
Unit Dimensions 9/16 (14) COMBUSTION AIR INTAKE Return Air Opening B EXHAUST AIR OUTLET 2−1/16 (52) 5 (127) 2−1/4 (57) TOP VIEW 27−3/4 (705) 1 (25) Front Panel AIR 9/16 (14) 9/16 (14) FLOW 19−7/16 (494) 9/16 (14) ELECTRICAL INLET (Either Side) 33 (838) 2 (51) Either Side CONDENSATE TRAP CONNECTION (Either Side) GAS PIPING INLET (Either Side) 9−1/8 (232) Right 6−9/16 (167) Left 3/4 (19) C Supply 3/4 (19) Air 19−1/4 Supply (489) Air FRONT VIEW Capacity Page 2 of 55 9 (229) 6−1/2 (1
Parts Arrangement CONTROL BOX (Includes integrated control, transformer and door switch) BAG ASSEMBLY BLOWER MOTOR (hidden) BLOWER COMPARTMENT ACCESS PANEL COMBUSTION AIR INDUCER BLOWER DECK HEATING COMPARTMENT ACCESS PANEL PRIMARY LIMIT COLD END HEADER BOX GAS VALVE HEAT EXCHANGER BURNER BOX ASSEMBLY (includes flame sensor, rollout switches and ignitor) Figure 1. 507769C05 mrcool.
Gas Furnace Shipping and Packing List This Category IV gas furnace is shipped ready for installation in the downflow position. 1 - Assembled Gas Unit The furnace is equipped for installation in natural gas applications. A conversion kit (ordered separately) is required for use in propane/LP gas applications.
In order to ensure proper unit operation in non-direct vent applications, combustion and ventilation air supply must be provided according to the current National Fuel Gas Code or CSA-B149 standard. Heating Unit Installed Parallell to Air Handler Unit Locations and Clearances AIR HANDLER GAS UNIT This furnace is CSA International certified for installation clearances to combustible material as listed on the unit nameplate and in the table in Figure 13.
f. Return air temperature range between 60°F (16°C) and 80°F (27°C) must be maintained. g. MERV 11 or greater air filters must be installed in the system and must be regularly inspected and maintained (e.g., regular static checks and replaced at end of life) during construction. h. Blower and vestibule access panels must be in place on the furnace at all times. i.
WARNING Insufficient combustion air can cause headaches, nausea, dizziness or asphyxiation. It will also cause excess water in the heat exchanger resulting in rusting and premature heat exchanger failure. Excessive exposure to contaminated combustion air will result in safety and performance related problems.
When communicating with the outdoors through horizontal ducts, each opening shall have a minimum free area of 1 square inch (645 mm²) per 2,000 Btu (.56 kW) per hour of the total input rating of all equipment in the enclosure. See Figure 7. ROOF TERMINATED EXHAUST PIPE SIDE WALL TERMINATED EXHAUST PIPE (ALTERNATE LOCATION) OPENINGS (To Adjacent Unconfined Space) FURNACE NOTE : Each opening shall have a free area of at least one square inch per 1,000 Btu (645 mm2 per .
Ventilation Louvers Roof Terminated Exhaust Pipe Installation Inlet Air (Minimum 12 in. (305mm) above Attic Floor) Setting Equipment *Intake Debris Screen (Provided) CAUTION Do not install the furnace on its front, back or in the horizontal position. See Figure 11. Do no connect the return air ducts to the back of the furnace. Doing so will adversely affect the operation of the safety control devices, which could result in personal injury or death.
Front Back Horizontal NOTE - Do not install the furnace on its front, back or in the horizontal position Figure 11. Refer to Figure 13 for clearances in downflow applications. AIR FLOW AIR FLOW Top AIR FLOW Left Side 1/2" max. FRONT VIEW SIDE VIEW Right Side SIDE VIEW Unit must be level side−to−side. Unit may be positioned from level to 1/2" toward the front to aid in draining. Bottom Figure 12.
3. Set the unit over the plenum and seal the plenum to the unit. 4. Ensure that the seal is adequate. Front to Rear Side to Side in. mm in. mm B (17.5”) 19-3/4 502 16-5/8 422 C (21”) 19-3/4 502 20-1/8 511 Cabinet Width FURNACE SUPPLY AIR PLENUM PROPERLY SIZED FLOOR OPENING COMBUSTIBLE FLOORING BASE COMBUSTIBLE FLOORING NOTE: Floor opening dimensions listed are 1/4 inch (6 mm) larger than the unit opening. See dimension drawing on Page 2. Table 1.
2. When cooling cabinet is in place, set and secure the furnace according to the instructions that are provided with the cooling coil. Secure the furnace to the cabinet. 3. Seal the cabinet and check for air leaks. Return Air Opening - Downflow Units Return air may be brought in only through the top opening of a furnace installed in the downflow position. The following steps should be taken when installing plenum: 1.
CAUTION Solvent cements for plastic pipe are flammable liquids and should be kept away from all sources of ignition. Do not use excessive amounts of solvent cement when making joints. Good ventilation should be maintained to reduce fire hazard and to minimize breathing of solvent vapors. Avoid contact of cement with skin and eyes. Use PVC primer and solvent cement or ABS solvent cement meeting ASTM specifications; refer to Table 4.
Capacity Standard Vent Pipe Dia. (in.
NOTE: Assembly should be completed within 20 seconds after last application of cement. Hammer blows should not be used when inserting pipe. 8. 9. After assembly, wipe excess cement from pipe at end of fitting socket. A properly made joint will show a bead around its entire perimeter. Any gaps may indicate an improper defective assembly due to insufficient solvent. Exhaust Piping See Figure 22 1.
Capacity Min. Vent Length* 045, 070, 090, 110 15 ft. or 5 ft. plus 2 elbows or 10 ft. plus 1 elbow Use the following steps to correctly size vent pipe diameter. * Any approved termination may be added to the minimum length listed. 1 Furnace capacity? 045, 070, 090, 110 2 Which termination? Standard or Concentric? See Table 5 3 Which needs most elbows? Intake or Exhaust? 4 How many? 5 Desired pipe size? 6 What is the altitude? 7 Use Table 7 to find max pipe length. Table 6.
Maximum Allowable Intake or Exhaust Vent Length in Feet Standard Termination at Elevation 0 - 2,000 ft 2” Pipe 2-1/2" Pipe Capacity Capacity 1-1/2” Pipe Capacity Number of 90° Elbows Used 045 070 1 15 2 3 4 5 6 7 8 9 10 10 090 045 070 090 15 61 46 10 56 51 46 41 36 31 26 21 16 41 36 31 26 21 16 11 n/a n/a 110 n/a n/a 110 045 070 090 24 100 80 19 14 95 90 85 80 75 70 65 60 55 75 70 65 60 55 50 45 40 35 n/a n/a n/a 3" Pipe Capacity 110 045 070 090 110 43 127 127 108
Maximum Allowable Intake or Exhaust Vent Length in Feet Number of 90° Elbows Used 045 070 1 10 2 3 4 5 6 7 8 9 10 Concentric Termination at Elevation 0 - 2,000 ft 2” Pipe 2-1/2" Pipe Capacity Capacity 1-1/2” Pipe Capacity n/a 090 045 070 090 10 53 38 n/a 48 43 38 33 28 23 18 13 n/a 33 28 23 18 13 n/a 110 n/a 110 045 070 090 22 90 70 39 17 12 85 80 75 70 65 60 55 50 45 65 60 55 50 45 40 35 30 25 34 29 24 19 14 9 n/a n/a 3" Pipe Capacity 110 n/a n/a 045 070 090 110 1
Maximum Allowable Exhaust Vent Lengths With Furnace Installed in a Closet or Basement Using Ventilated Attic or Crawl Space For Intake Air in Feet Standard Termination at Elevation 0 - 2,000 ft 1-1/2” Pipe 2” Pipe 2-1/2" Pipe 3" Pipe Number of Capacity Capacity Capacity Capacity 90° Elbows Used 045 070 090 110 045 070 090 110 045 070 090 110 045 070 090 110 1 2 3 4 5 6 7 8 9 10 10 n/a 10 51 36 14 85 65 28 107 107 88 88 31 26 21 16 11 9 80 75 70 65 60 55 50 45 40 60 55 50 45 40 35 30 25 20
NOTE: 1-1/2” Vent Pipe Diameter Allowed Only on 045/070 Units Pipe size determined in table 7. 2” 2” 2” 2” 2” 3” or or 1-1/2” TRANSITION TRANSITION *2” *2” DO NOT transition from smaller to larger pipe in horizontal runs of exhaust pipe. INTAKE DO NOT transition from larger to smaller pipe in horizontal runs of exhaust pipe. EXHAUST TOP VIEW * When transitioning up in pipe size, use the shortest length of 2” PVC pipe possible. NOTE: Exhaust pipe and intake pipe must be the same diameter.
Intake Piping Intake Debris Screen (Provided) This furnace may be installed in either direct vent or nondirect vent applications. In non-direct vent applications, when intake air will be drawn into the furnace from the surrounding space, the indoor air quality must be considered. Guidelines listed in Combustion, Dilution and Ventilation Air section must be followed.
At vent termination, care must be taken to maintain protective coatings over building materials (prolonged exposure to exhaust condensate can destroy protective coatings). It is recommended that the exhaust outlet not be located within 6 feet (1.8 m) of a condensing unit because the condensate can damage the painted coating. Roof Terminated Exhaust Pipe Ventilation Furnace Louvers (Crawl Space) Coupling or 3 in. to 2 in. Transition (Field Provided) Inlet Air Minimum 12 in.
Maximum Allowable Exhaust Vent Pipe Length3 (in ft.) without Insulation in Unconditioned Space for Winter Design Temperatures Single - Stage High Efficiency Furnace Winter Design Temperatures1 ºF (ºC) Unit Input Size Vent Pipe Diameter 045 PVC 32 to 21 (0 to -6) 20 to 1 (-7 to -17) 0 to -20 (-18 to -29) 070 2 PP PVC 090 2 PP PVC 110 2 PP PVC 2 PP 1-1/2 in. 20 N/A 20 N/A N/A N/A N/A N/A 2 in. 18 16 31 28 50 48 30 30 2-1/2 in. 13 N/A 24 N/A 42 N/A 36 N/A 3 in.
VENT TERMINATION CLEARANCES FOR NON-DIRECT VENT INSTALLATIONS IN THE US AND CANADA INSIDE CORNER DETAIL G H A D E B L Fixed Closed Operable F B B C Operable B K AREA WHERE TERMINAL IS NOT PERMITTED AIR SUPPLY INLET VENT TERMINAL M J A B I Fixed Closed US Installations1 A= Clearance above grade, veranda, porch, deck or balcony B= Clearance to window or door that may be opened C= Clearance to permanently closed window D= Vertical clearance to ventilated soffit located above the ter
VENT TERMINATION CLEARANCES FOR DIRECT VENT INSTALLATIONS IN THE USA AND CANADA INSIDE CORNER DETAIL G H A D E B L Fixed Closed Operable F B B C Operable B A B M K J AREA WHERE TERMINAL IS NOT PERMITTED AIR SUPPLY INLET VENT TERMINAL I Fixed Closed US Installations1 A= Clearance above grade, veranda, porch, deck or balcony B= Clearance to window or door that may be opened C= Clearance to permanently closed window D= Vertical clearance to ventilated soffit located above the terminal
Details of Intake and Exhaust Piping Terminations for Direct Vent Installations 2" EXTENSION FOR 2" PVC PIPE 1" EXTENSION FOR 3" PVC PIPE NOTE: In Direct Vent installations, combustion air is taken from outdoors and flue gases are discharged to outdoors. NOTE: Flue gas may be slightly acidic and may adversely affect some building materials.
FIELD FABRICATED WALL TERMINATION NOTE − FIELD−PROVIDED REDUCER MAY BE REQUIRED TO ADAPT LARGER VENT PIPE SIZE TO TERMINATION 2” (51mm) 3” (76mm) Vent Pipe Vent Pipe D D B C1 A B Intake Elbow C2 A STRAIGHT APPPLICATION * WALL SUPPORT D E D E B B A C1 EXTENDED APPLICATION A C2 A− Minimum clearance above grade or average snow accumulation 12” (305 mm) 12” (305 mm) B− Maximum horizontal separation between intake and exhaust 6” (152 mm) 6” (152 mm) C1 -Minimum from end of exhaust t
71M80, 69M29 or 60L46 (US) 44W92 or 44W93 (Canada) FIELD−PROVIDED REDUCER MAY BE REQUIRED TO ADAPT LARGER VENT PIPE SIZE TO TERMINATION 1−1/2" (38mm) accelerator provided on 71M80 & 44W92 OUTSIDE WALL Exhaust Pipe Furnace INTAKE AIR EXHAUST VENT Inlet Air Minimum 12 in. (305MM) above grade or snow accumulation INTAKE AIR Figure 32. Exiting Exhaust and Intake Vent (no common pressure zone) EXHAUST VENT INTAKE 12" (305mm) Min. above grade or AIR CLAMP (Not Furnished) average snow accumulation.
Details of Exhaust Piping Terminations for NonDirect Vent Applications * SIZE TERMINATION PIPE PER EXHAUST PIPE TERMINATION SIZE REDUCTION TABLE Exhaust pipe may be routed either horizontally through an outside wall or vertically through the roof. In attic or closet installations, vertical termination through the roof is preferred. Figure 38 through Figure 39 show typical terminations. 1. 2. 3.
Condensate Piping This unit is designed for either right or left side exit of condensate piping in downflow applications. Refer to Figure 41 for condensate trap locations. Trap (same on right side) NOTE: If necessary the condensate trap may be installed up to 5” away using PVC pipe from the furnace. Piping from furnace must slope down a minimum of 1/4” per ft. toward trap. 1.
Field Provided Vent 1” min. 2” max. above condensate drain. Field Provided Vent 1” min. 2” max. above condensate drain. Condensate Drain Connection Condensate Drain Connection Evaporator Drain Line (vent required) Evaporator Drain Line (vent required) Drain Figure 43. Unit with Cooling Coil Using Separate Drain Figure 44.
Optional Condensate Drain Connection Adapter 3/4 inch slip X 3/4 inch mpt (not furnished) 90° Street Elbow 3/4 inch PVC (not furnished) Adapter 3/4 inch slip X 3/4 inch mpt (not furnished) Condensate Drain Connection In Unit 90° Street Elbow 3/4 inch PVC ( furnished) 1 (25 mm) Min. 2 (50 mm) Max.
Gas Piping IMPORTANT Compounds used on threaded joints of gas piping must be resistant to the actions of liquified petroleum gases. CAUTION If a flexible gas connector is required or allowed by the authority that has jurisdiction, black iron pipe shall be installed at the gas valve and extend outside the furnace cabinet. The flexible connector can then be added between the black iron pipe and the gas supply line. WARNING Do Not exceed 600 in. lbs. (50 ft. lbs.
Left Side Piping (Standard) MANUAL MAIN SHUT−OFF VALVE (With 1/8 in. NPT Plugged Tap Shown) AUTOMATIC GAS VALVE (with manual shut−off valve) MANUAL MAIN SHUT−OFF VALVE (With 1/8 in. NPT Plugged Tap Shown) GROUND JOINT UNION AUTOMATIC GAS VALVE (with manual shut−off valve) Plug Plug GROUND JOINT UNION Bellows Grommet DRIP LEG Right Side Piping (Alternate) FIELD PROVIDED AND INSTALLED DRIP LEG Bellows Grommet NOTE − BLACK IRON PIPE ONLY TO BE ROUTED INSIDE OF CABINET Figure 48.
Removal of the Furnace from Common Vent In the event that an existing furnace is removed from a venting system commonly run with separate gas appliances, the venting system is likely to be too large to properly vent the remaining attached appliances. Conduct the following test while each appliance is operating and the other appliances (which are not operating) remain connected to the common venting system.
The power supply wiring must meet Class I restrictions. Protected by either a fuse or circuit breaker, select circuit protection and wire size according to unit nameplate. Electrical ELECTROSTATIC DISCHARGE (ESD) NOTE: Unit nameplate states maximum current draw. Maximum Over-Current Protection allowed is 15 AMP. Precautions and Procedures Holes are on both sides of the furnace cabinet to facilitate wiring. CAUTION Electrostatic discharge can affect electronic components.
in the heating mode when the combustion air inducer is operating and the pressure switch is closed. Any humidifier rated up to 0.5 amp can be connected to this terminal with the ground leg of the circuit connected to ground or the “C” terminal. (Refer to specific thermostat and outdoor unit.
045*B3 070*B4 090*C4 110*C5 Figure 53. Typical Wiring Diagram Page 38 of 55 mrcool.
Red LED Flash Code2 Off Diagnostic Codes / Status of Furnace No power to control or control hardware fault detected Heartbeat1 Normal operation - idle, continuous fan, cool Continuous Rapid Flash Call for heat / burner operation 1 Flash Reverse line voltage polarity 2 Flashes Improper earth ground 3 Flashes Burner failed to light, or lost flame during heat demand 4 Flashes Low flame signal - check flame sensor 5 Flashes Watchguard - burner failed to light, exceeded maximum number of retries or
1/4” Quick Connect Terminal Designations 120V HUM Power for Humidifier (120VAC) LINE Incoming Power Line (120VAC) XFMR Transformer Primary (120VAC) CIRC Indoor Blower Motor (120VAC) EAC Electronic Air Cleaner (120VAC) HUM24 Power For Humidifier (24VAC) NEUTRALS (5) Neutral 3/16” Quick Connect Terminal Designations COOL Cool Speed From Indoor Blower Motor (24VAC) HEAT Heat Speed From Indoor Blower Motor (24VAC) FAN Continuous Fan Speed From Indoor Blower Motor (24VAC) PARK (3) Terminals
CAUTION Before attempting to perform any service or maintenance, turn the electrical power to unit OFF at disconnect switch. BEFORE LIGHTING the unit, smell all around the furnace area for gas. Be sure to smell next to the floor because some gas is heavier than air and will settle on the floor. The gas valve on the unit is equipped with a gas control switch (lever). Use only your hand to move switch. Never use tools. If the switch will not move by hand, do not try to repair it.
5. Is the filter dirty or plugged? Dirty or plugged filters will cause the limit control to shut the unit off. 6. Is gas turned on at the meter? 7. Is the manual main shut–off valve open? 8. Is the internal manual shut–off valve open? 9. Is the unit ignition system in lockout? If the unit locks out again, inspect the unit for blockages. Heating Sequence of Operation 1. When thermostat calls for heat, combustion air inducer starts. 2. Combustion air pressure switch proves blower operation.
Manifold and Supply Line Pressure 0-10,000 ft. Capacity Gas All Sizes Manifold Pressure in. w.g. 7501-10000 ft. Supply Line Pressure in. w.g. 0-10,000 ft. 0-4500 ft. 4501-5500 ft. 5501-6500 ft. 6501-7500 ft. Natural 3.5 3.3 3.2 3.1 3.5 4.5 13.0 LP / Propane 10.0 9.4 9.1 8.9 10.0 11.0 13.0 NOTE: A natural to LP propane gas changeover kit is necessary to convert this unit. Refer to the changeover kit installation instruction for the conversion procedure. Table 17.
Testing for Proper Venting and Sufficient Combustion Air for Non-Direct Vent Applications 1. Seal any unused openings in the venting system. 2. Failure to follow the steps outlined below for each appliance connected to the venting system being placed into operation could result in carbon monoxide poisoning or death. Visually inspect the venting system for proper size and horizontal pitch.
Other Unit Adjustments Primary Limit The primary limit is located on the heating compartment vestibule panel. This limit is factory set and requires no adjustment. SW2-1 SW2-2 60 OFF ON 90* OFF OFF 120 ON OFF 180 ON ON * Factory setting Table 20. Blower Delay Select Flame Rollout Switches (Two) These manually reset switches are located on the front of the burner box. These limits are factory set and require no adjustment.
Blower Speeds 6. Connect selected speed tap at control board speed terminal. 1. Turn off electrical power to furnace. 7. Re-secure blower access panel. 2. Remove blower compartment access panel. 8. Turn on electrical power to furnace. 3. Disconnect existing speed tap at control board speed terminal. 9. Recheck temperature rise. Follow the steps below to change the blower speeds. Electronic Ignition NOTE: Termination of any unused motor leads must be insulated. 4.
MGD96SE090C4XA Performance (Less Filter) External Static Pressure in. w.c. Air Volume / Watts at Different Blower Speeds cfm watts cfm watts cfm watts cfm watts cfm watts 0.00 1760 435 1555 280 1405 230 1315 175 1190 135 0.10 1730 445 1515 300 1375 240 1280 190 1150 145 0.20 1700 455 1475 315 1350 250 1245 205 1115 155 0.30 1670 465 1445 330 1310 265 1200 220 1070 165 0.
3. Service Check amp-draw on the blower motor with the blower compartment access panel in place. Motor Nameplate____________ Actual____________ WARNING Winterizing and Condensate Trap Care 1. Turn off power to the furnace. ELECTRICAL SHOCK, FIRE, OR EXPLOSION HAZARD. 2. Have a shallow pan ready to empty condensate water. Failure to follow safety warnings exactly could result in dangerous operation, serious injury, death or property damage. 3.
16. Remove screws along vestibule sides and bottom which secure vestibule panel and heat exchanger assembly to cabinet. Remove two screws from blower rail which secure bottom heat exchanger flange. Remove heat exchanger from furnace cabinet. 17. Back wash heat exchanger with soapy water solution or steam. If steam is used it must be below 275°F (135°C). 18. Thoroughly rinse and drain the heat exchanger. Soap solutions can be corrosive. Take care to rinse entire assembly. 19.
Troubleshooting: Heating Sequence of Operation HEATING SEQUENCE OF OPERATION ABNORMAL HEATING MODE NORMAL HEATING MODE POWER ON GAS VALVE OFF. COMBUSTION AIR INDUCER OFF. INDOOR BLOWER DELAY OFF. LED SLOW FLASH (RESET CONTROL BY TURNING MAIN POWER OFF.) NO CONTROL SELF-CHECK OKAY? YES NO IS POLARITY CORRECT? LED FLASHES CODE 1 - POLARITY REVERSED. YES NO IS THERE A PROPER GROUND? LED FLASHES CODE 2 - IMPROPER GROUND.
Troubleshooting: Heating Sequence of Operation (continued) HEATING SEQUENCE CONTINUED NORMAL HEATING MODE ABNORMAL HEATING MODE 15‐SECOND COMBUSTION AIR INDUCER PREPURGE INITIATED BY CLOSED PRESSURE SWITCH. YES IGNITOR WARM‐UP -- 20 SECONDS. NO IS VOLTAGE ABOVE 70 VOLTS? YES 4‐SECOND TRIAL FOR IGNITION. GAS VALVE OPENS. IGNITOR ENERGIZED FOR FIRST 3 SECONDS OF THE TRIAL. YES FLAME STABILIZATION PERIOD. NO YES LED FLASHES CODE 13 LOW LINE VOLTAGE.
Troubleshooting: Cooling Sequence of Operation COOLING SEQUENCE OF OPERATION NORMAL COOLING MODE ABNORMAL COOLING MODE POWER ON IGNITION CONTROL MAIN POWER ON. NO CONTROL SELF DIAGNOSTIC CHECK. IS CONTROL OPERATING NORMALLY? YES NO IS THERE A PROPER GROUND? YES NO IS POLARITY CORRECT? YES NO LED FLASHES STEADY - CIRCUIT BOARD FAILURE GAS VALVE OFF. COMBUSTION AIR INDUCER OFF. INDOOR BLOWER OFF WITH NORMAL DELAY. INTERRUPT MAIN POWER TO RESET CONTROL.
Troubleshooting: Continuous Fan Sequence of Operation CONTINUOUS FAN / ACCESSORIES SEQUENCE OF OPERATION LED: SLOW FLASH RATE REMAINS UNCHANGED THROUGHOUT SEQUENCE. MANUAL FAN SELECTION MADE AT THERMOSTAT. CONTROL (G) ENERGIZES SYSTEM FAN AT FAN SPEED. EAC TERMINAL IS ENERGIZED. THERMOSTAT CALLS FOR HEAT (W). YES NO THERMOSTAT CALLS FOR COOLING. YES SYSTEM FAN SWITCHED TO COOL SPEED. EAC TERM. REMAINS ON. SYSTEM FAN CONTINUES FAN SPEED WITHOUT INTERRUPTION. EAC TERMINAL REMAIN ON.
Planned Service A service technician should check the following items during an annual inspection. Power to the unit must be shut off for safety. Fresh air grilles and louvers (on the unit and in the room where the furnace is installed) - Must be open and unobstructed to provide combustion air. Operating performance - Unit must be observed during operation to monitor proper performance of the unit and the vent system. Burners - Must be inspected for rust, dirt, or signs of water.
Requirements for Commonwealth of Massachusetts Modifications to NFPA-54, Chapter 10 Revise NFPA-54 section 10.8.
Signature Series MGD*96SE*XA Gas Furnace ELECTRICIAN and/or HVAC TECHNICIAN: LICENSE #: INSTALLATION DATE: INSTALLATION LOCATION: SERIAL NUMBER: The design and specifications of this product and/or manual are subject to change without prior notice. Consult with the sales agency or manufacturer for details.