Installation Guide

27
I&O manual
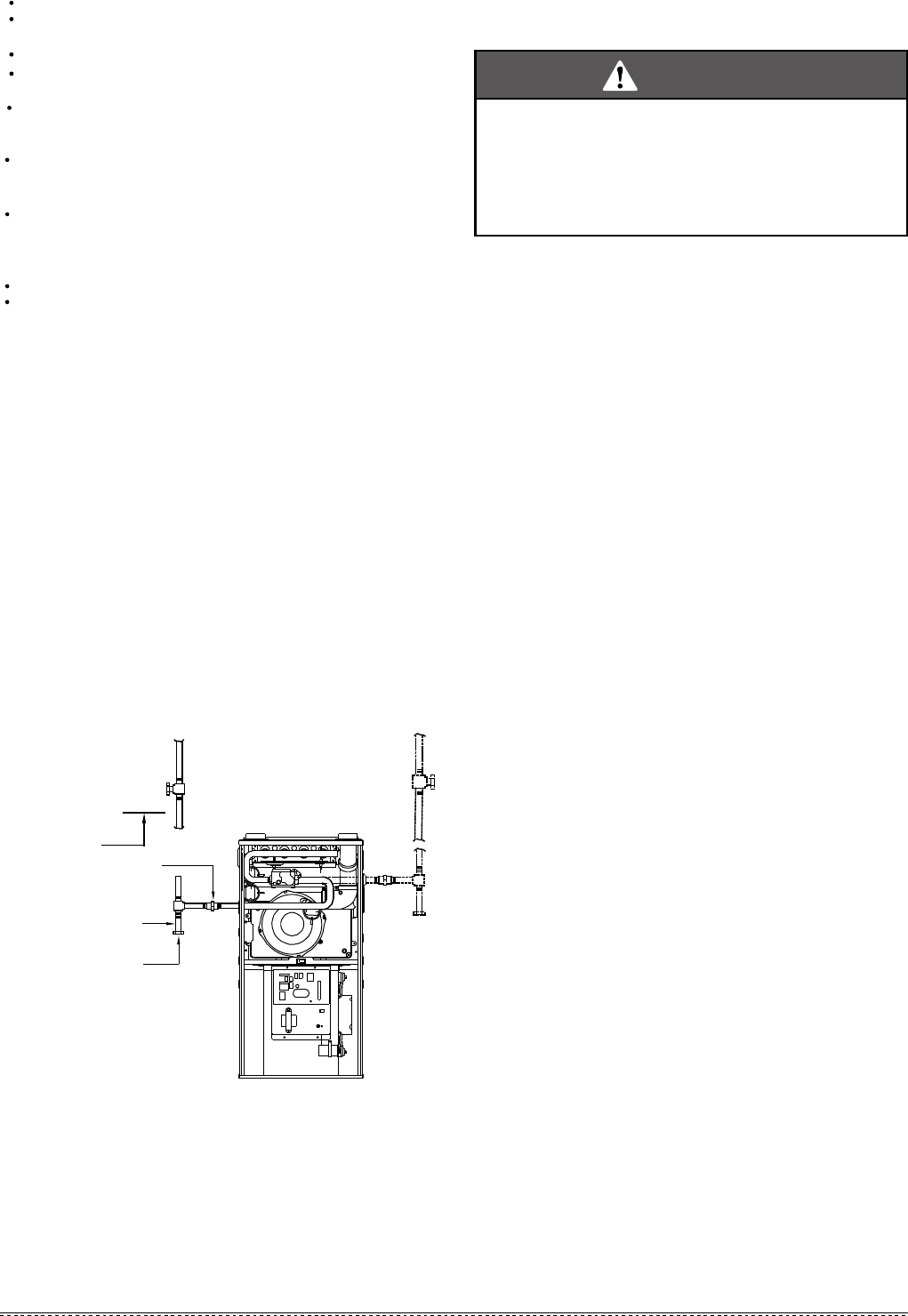
When the gas piping enters through the right side of the furnace
the installer must supply the following fittings (starting from the
gas valve):
• 90 degree elbows (2).
• Close nipple.
• Straight pipe to reach the exterior of the furnace.
8.5 Gas Piping Checks
The following stipulations apply when connecting gas piping.
Use black iron or steel pipe and fittings for the building piping.
Use pipe joint compound on male threads only. Pipe joint
compound must be resistant to the action of the fuel used.
Use ground joint unions.
Install a drip leg to trap dirt and moisture before it can enter the
gas valve. The drip leg must be a minimum of three inches long.
Install a 1/8" NPT pipe plug fitting, accessible for test gage
connection immediately upstream of the gas supply connection
to the furnace.
Use two pipe wrenches when making connection to the gas valve
to keep it from turning. The orientation of the gas valve on the
manifold must be maintained as shipped from the factory.
Install a manual shutoff valve between the gas meter and unit
within six feet of the unit. If a union is installed the union must
be downstream of the manual shutoff valve, between the shutoff
valve and the furnace.
Tighten all joints securely.
Connect the furnace to the building piping by one of the following
methods:
Rigid metallic pipe and fittings.
Semi-rigid metallic tubing and metallic fittings. Aluminum alloy
tubing must not be used in exterior locations.
Use listed gas appliance connectors in accordance with their
instructions. Connectors must be fully in the same room as the
furnace.
Protect connectors and semi-rigid tubing against physical and
thermal damage when installed. Ensure aluminum-alloy tubing
and connectors are coated to protect against external corrosion
when in contact with masonry, plaster, or insulation, or
subjected to repeated wetting by liquids such as water (except
rain water), detergents, or sewage.
Before placing unit in operation, leak test the unit and gas connec-
tions.
Check for leaks using an approved chloride-free soap and water
solution
an electronic combustible gas detector or other approved testing
methods.
NOTE: Never exceed specified pressures for testing. Higher
pressure may damage the gas valve and cause subsequent
overfiring resulting in heat exchanger failure.
Disconnect this unit and shutoff valve from the gas supply piping
system before pressure testing the supply piping system with
pressures in excess of 1/2 psig (3.48 kPa).
This unit must be isolated from the gas supply system by closing
its manual shutoff valve before pressure testing of gas supply
piping system with test pressures equal to or less than 1/2 psig
(3.48 kPa).
A ground joint union, drip leg, and manual shutoff valve must also
be supplied by the installer. In some cases, the installer may also
need to supply a transition piece from 1/2" to another pipe size.
When the gas piping enters through the left side of the furnace
the installer must supply the following fittings (starting from the
gas valve):
• Straight pipe to reach the exterior of the furnace.
A ground joint union, drip leg, and manual shutoff valve must also
be supplied by the installer. In some cases, the installer may also
need to supply a transition piece from 1/2 inch to another pipe size.
WARNING
Failure to follow this warning could cause personal injury, death
and/or property damage.
Never test for gas leaks with an open flame. Use a commer-
cially available soap solution made specifically for the detection
of leaks to check all connections.
FIRE AND EXPLOSION HAZARD
Fig. 30 - Typical Gas Pipe Arrangement
Location of Manual value
(Installed Ahead of Ground
Joint Pipe Union)
Height Required
By Local Code
Ground Joint Pipe Union
To Be Installed Ahead of
Gas Valve
Drip Leg
Reducing Coupling
1/2” x 1/8” with 1/8”
Pipe Plug To Measure
Line Gas Pressure