Instructions / Assembly
Manuals
Brands
MRCOOL Manuals
Air Conditioners
Signature 2-Ton 24,000-BTU 16 SEER Horizontal Complete Split System Air Conditioner with 95% AFUE Gas Furnace
31
32
33
34
35
36
37
38
39
40
507276-05C
Page 36 of 57
mrcool.com
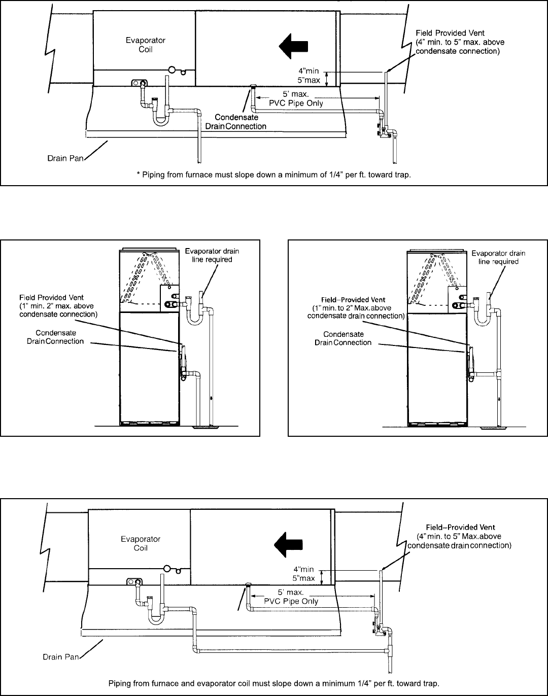
Figure 55. Condensate T
rap Locations
Figure 56. Unit with Cooling Coil Using Separate
Drain
Figure 57. Evaporator Coil Using a Common Drain
Figure 58. Evaporator Coil Using a Common Drain
1
...
...
35
36
37
38
39
...
...
59