Instructions / Assembly
Manuals
Brands
MRCOOL Manuals
Air Conditioners
Signature 1.5 Ton 14.5 SEER Upflow 95% AFUE 70,000 BTU Complete Split System Air Conditioner with Gas Furnace
1
2
3
4
5
6
7
8
9
10
507276-05C
Page 2 of 57
mrcool.com
1
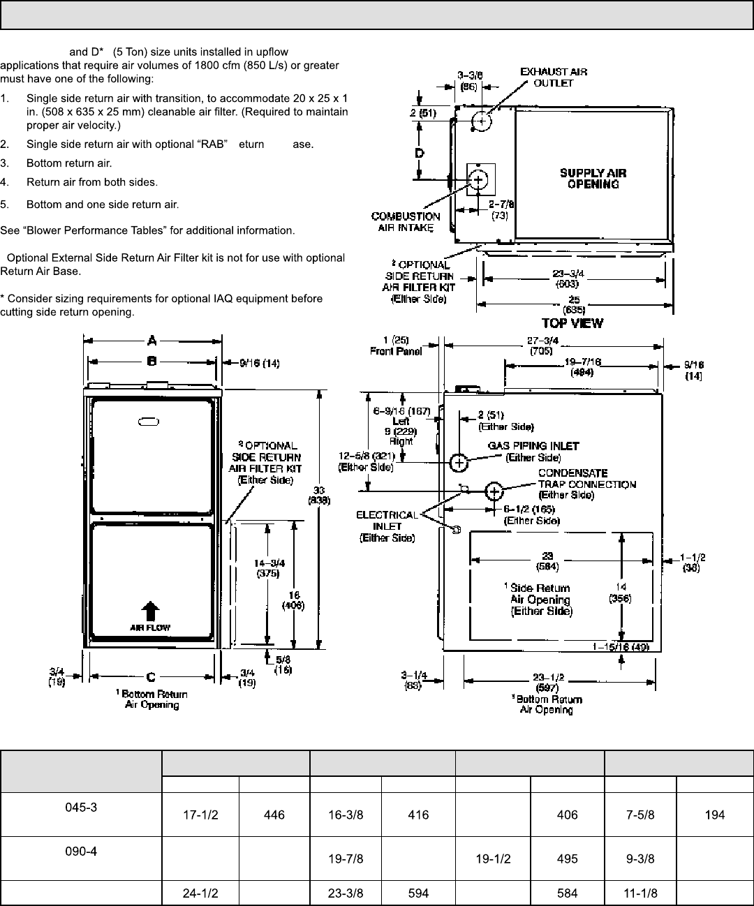
NOTE
- C*5
5
R
A
ir
B
2
FRONT VIEW
SIDE VIEW
Unit Dimensions
Model
A
B
C
D
in.
mm
in.
mm
in.
mm
in.
mm
070-3
16
1
10-5
21
533
505
238
135-5
622
23
283
1
2
3
4
5
...
...
59