Installation Guide

INSTALLER
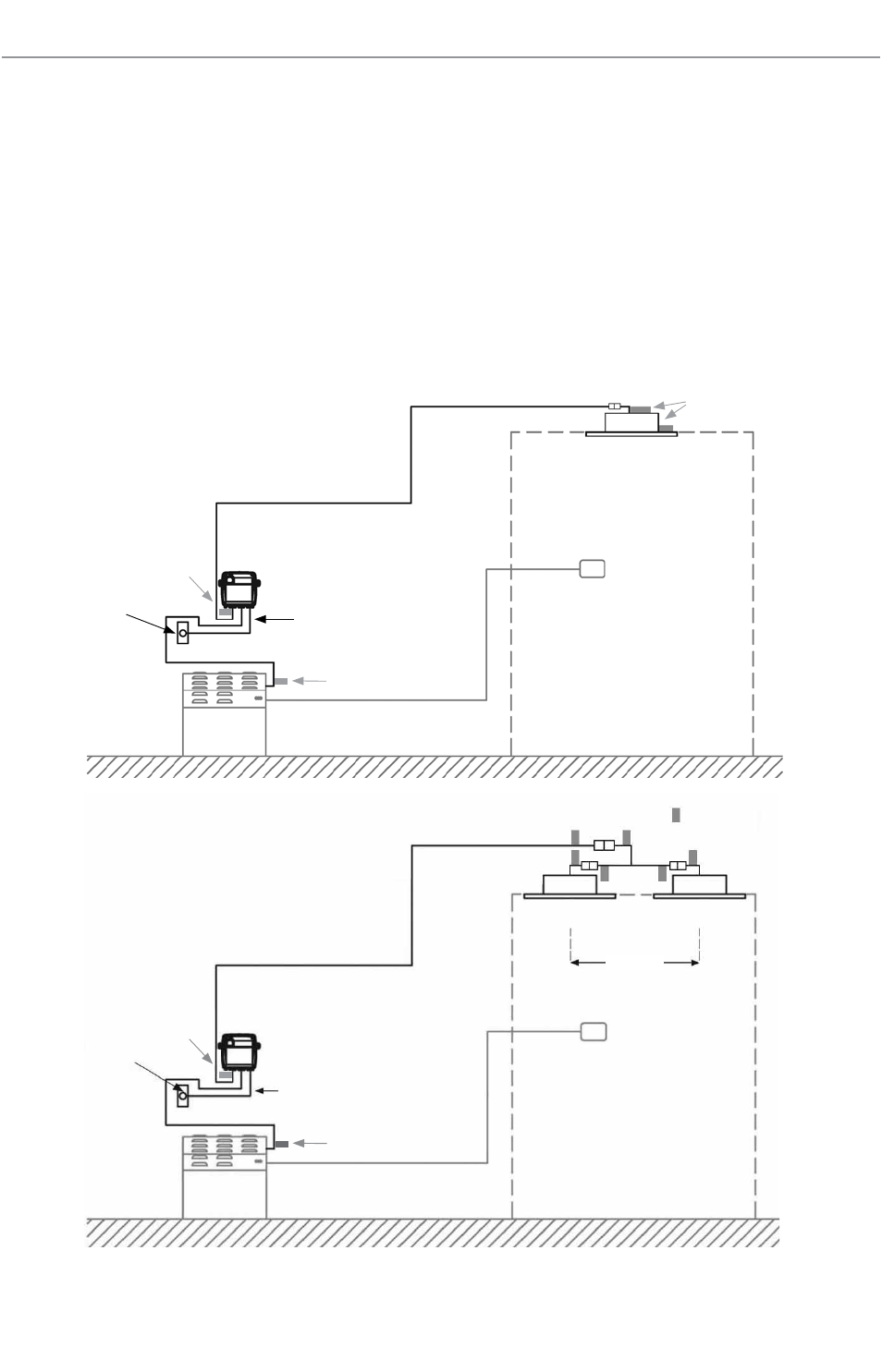
General Installation
Figure 3
shows how the ChromaSteam3 fixture and control box interconnect with each other, and with the
steam generator and iSteam3.
MPORTANT NOTES
• The included ChromaSteam3 control cable is 30 feet long. Ensure that the ChromaSteam3 fixture and con-
trol box are located accordingly. Contact MrSteam to purchase an optional 60-foot cable (PN 104268-60).
• ChromaSteam3 Duo cable has (2) 5 feet long extensions, it enables (2) ChromaSteam3 fixtures to be
located at a maximum of 10 feet apart.
• The cord between the control box and steam generator is 5 feet long.
• ChromaSteam3 only works with iSteam3.
Figure 3
All drawings are for illustrative purposes only.
ChromaSteam3
fixture
(yellow flags)
iSteam3
Grounded
wall
outlet
ChromaSteam3
control box
Steam
Generator
Power cord
In-room control cable (30/60 ft)
(Dry)
STEAM ROOM
(Wet)
ChromaSteam3 cable (30 ft)
= yellow flag
(red flag)
(red flag)
(yellow flag)
(yellow flag)
ChromaSteam3
Fixture
ChromaSteam3
Fixture
ChromaSteam3 Duo Cable
iSteam3
Grounded
wall
outlet
ChromaSteam3
Control box
Steam
Generator
Power cord
In-room control cable (30/60 ft)
(Dry)
ChromaSteam3 Cable (30 ft)
STEAM ROOM
(Wet)
10 ft. Max
mr
.
steam
®
INSTALLATION, OPERATION, AND MAINTENANCE ChromaSteam
®
3
______________________________________________________________________________________
5










