Manual

10
Installation Instructions and Owner’s Manual
Unvented Natural Gas Vent Free Room Heaters
Pressure Testing Heater Gas Connections:
1. Make sure that the heater supply piping system
is connected and has been leak tested as
described above.
2. Make sure control knob of heater is in OFF
position.
3. Open equipment shutoff valve (see fi gure 13).
4. Open main gas valve on or near gas meter.
5. Check all joints from equipment shutoff valve
to control valve (see fi gure 14). Apply mixture
of liquid soap and water to gas joints. Bubbles
forming show a leak.
6. Correct all leaks at once.
7. Light heater (see Operating Your Heater, pages
10 and 11. Check the rest of the internal joints
for leaks.
8. Turn off heater (see To Turn OFF Gas to
Appliance, page 11.
9. Replace lower front panel.
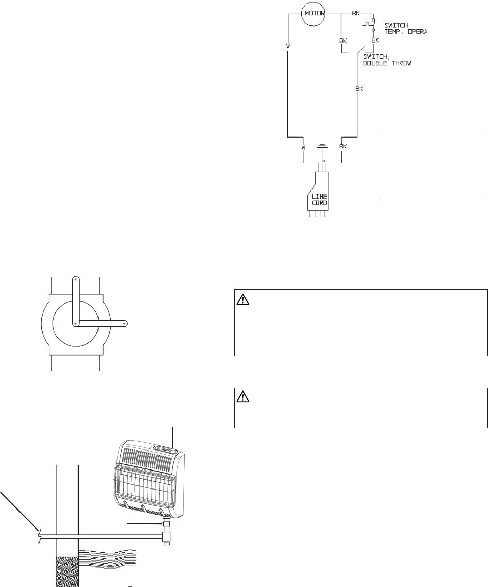
Figure 13
Figure 14
Equipment
Shutoff Valve
Open
Closed
ELECTRICAL WIRING DIAGRAM:
If any original wiring as supplied with the heater must
be replaced, it must be replaced with type AWG 105
o
C
wire or its equivalent except as indicated.
WARNING: Electrical Grounding Instructions: This
heater is equipped with a three-prong (grounding)
plug for your protection against shock hazard and
should be plugged into a properly grounded three-
prong receptacle.
OPERATING YOUR HEATER
FOR YOUR SAFETY READ BEFORE LIGHTING
WARNING: If you do not follow these instructions
exactly, a fi re or explosion may result causing
property damage, personal injury or loss of life.
A. This appliance has a pilot which must be lighted
by pushing the ignitor button. When lighting the
pilot, follow these instructions exactly.
B. BEFORE LIGHTING smell all around the
appliance area for gas. Be sure to smell next to
the fl oor because some gas is heavier than air
and will settle on the fl oor.
WHAT TO DO IF YOU SMELL GAS
• Do not try to light any appliance.
• Do not touch any electrical switch; do not use
any phone in your building.
• Immediately call your gas supplier from a
neighbor’s phone. Follow the gas supplier’s
instructions.
• If you can not reach your gas supplier, call the
fi re department.
C. Use only your hand to push in or turn the gas
control knob. Never use tools. If knob will not
push in or turn by hand, don’t try to repair it call
a qualifi ed service technician or gas supplier.
Force or attempted repair may result in a fi re or
explosion.
Control Valve
Equipment
Shutoff Valve
To gas meter
Figure 15
Caution: Label all wires prior to
disconnection when
servicing controls.
Wiring errors can cause
improper and dangerous
operation. Verify proper
operation after servicing.










