User Manual
Manuals
Brands
Mosa Manuals
Generators & Power
51kva Perkins Three Phase Diesel Generator
11
12
13
14
15
16
17
18
19
20
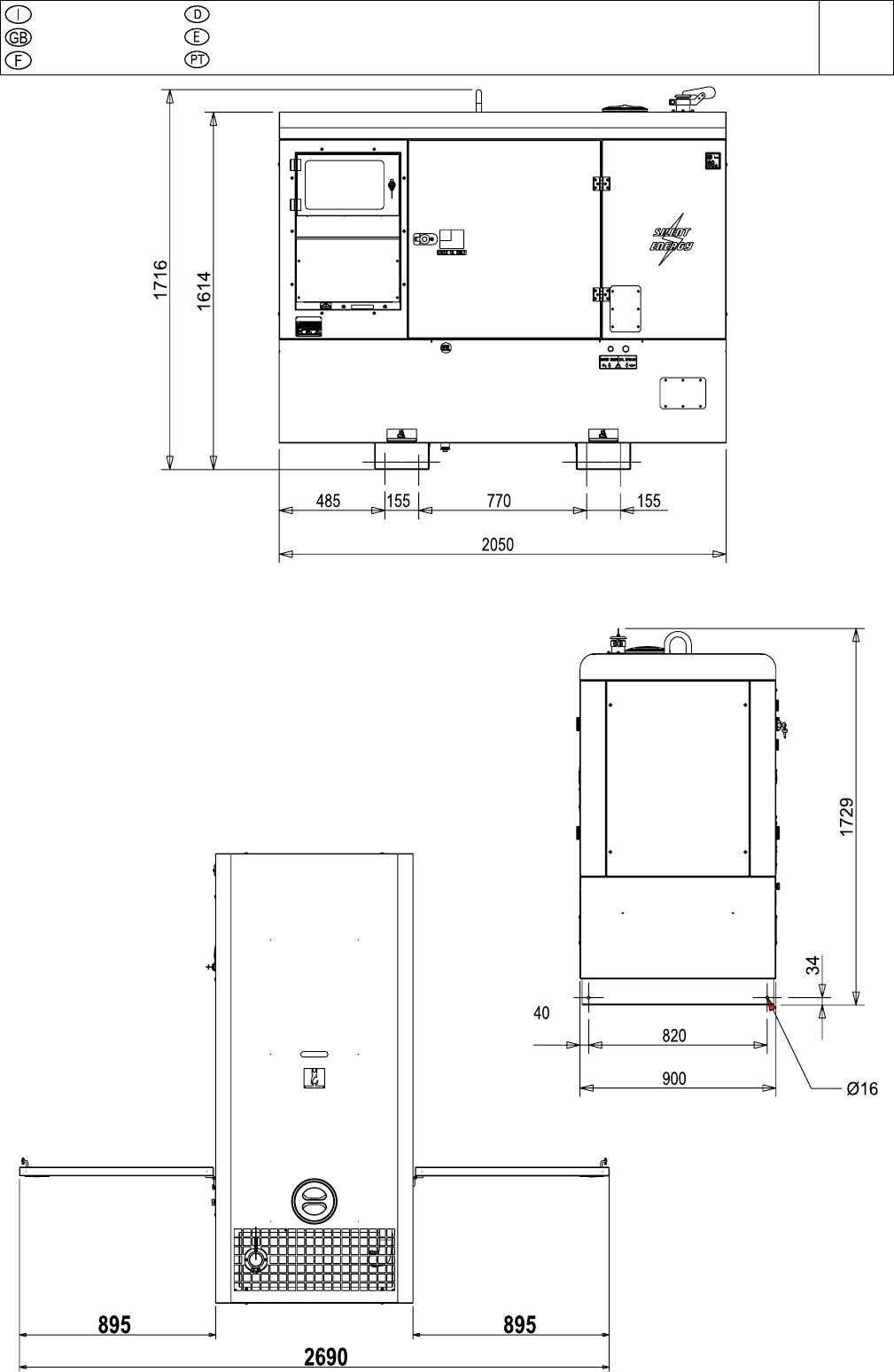
INST
ALLAZIONE
INST
ALLA
TION
INST
ALLA
TION
LUFTZIRKULA
TION
INST
ALACIÓN
INST
ALAÇÃO
M
2.7.1
REV
.0-10/14
23/1
1/12 84831-IT
1
...
...
15
16
17
18
19
...
...
58