User Manual

Installationinstructions
M
2.6.2
REV.0-06/10
H=ALTEZZA G.E.
H=HEIGTH G.S.
H=HAUTEUR G.E.
H=ALTEZA G.E.
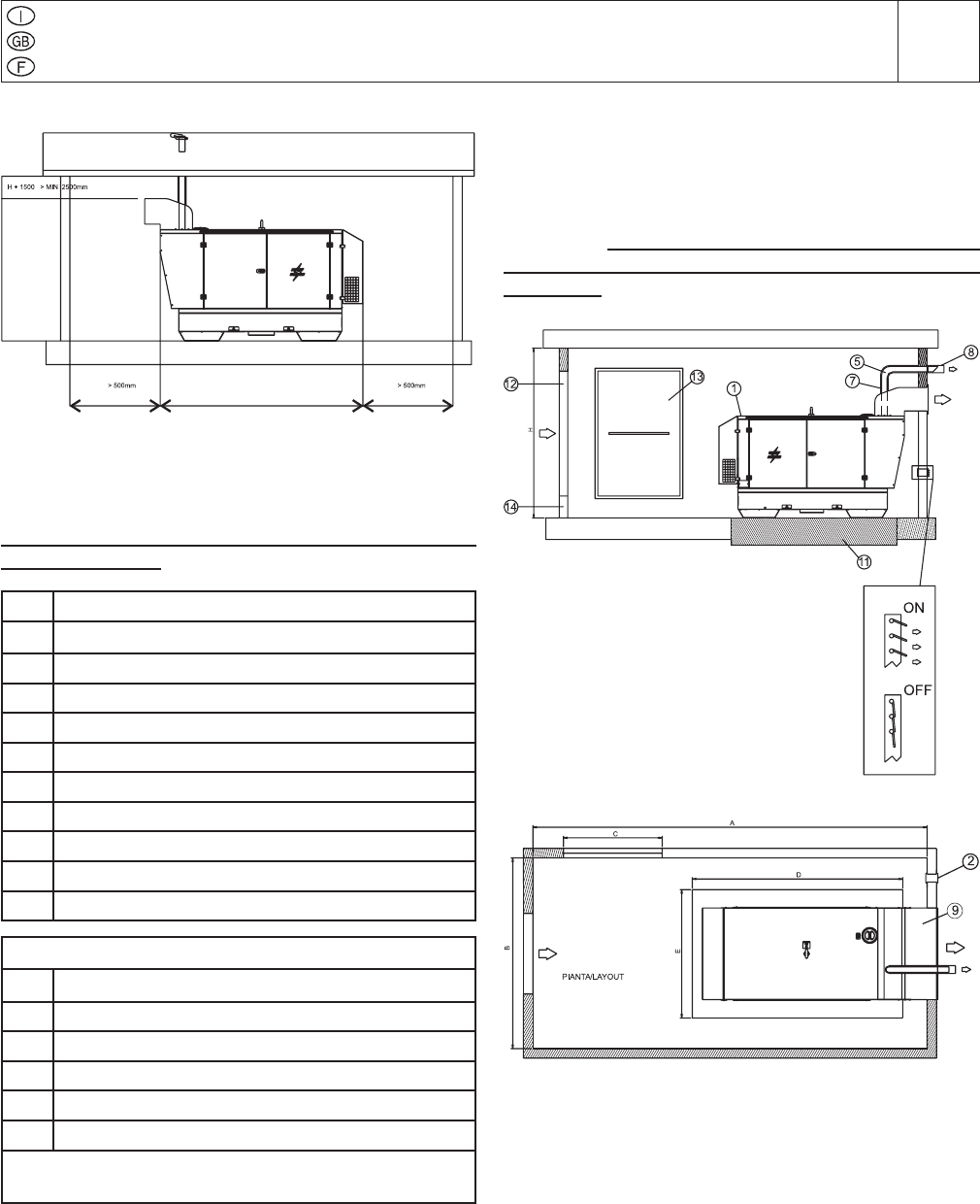
Indoor installation
In order to avoid endangering or damaging genset fol-
lowing indications must be followed.
Genset installation location has to be in accordance to
the norms in force.
ref. Description
1 Generating set
2 Auxiliary aspirator
5 Exhaust pipe
7 Exhaust pipe protection and insulation
8 Raincover and anti-intrusion grid
9 Exhaust conduit
11 Location area with isolated foundation
12 Air inlet with anti-intrusion grid
13 Entrance door
14 Containment step
Minimum suggested dimension table
A Length G.E. + 1000 mm
B Width G.E. + 2000 mm
C Width G.E. + 200 mm
D Length G.E. + 400 mm
E Width G.E. + 400 mm
H Height G.E. + 1500 mm (>2500 mm)
Note: dimensions required by norms in force have to
be respected in any case.
Surface area
The best solution is to create a base isolated from the
rest of the structure, on which the genset will be located,
in order to avoid vibrations being transmitted.
The base must be built with reinforced concrete and the-
re must be the possibility to x the genset to it by using
screw anchors or rag bolts.
Base dimensions should exceed genset dimensions of
at least 200 mm on each side. Base should weigh three
times static genset weight (indicated on the technical
date).
Floor should be levelled and suitable to sustain genset
weight.
Thresholds on doors and openings should have a barrier
in order to avoid liquids leaking. In case it is not possible
to provide a door with a barrier, the genset should have
a collection base appropriate for the quantity of liquid
it contains, in any case dimensions of collection base
must be in accordance to the laws in force in country of
installation.
Room openings and ventilation
The room should have a ventilation system sufcient
enough to avoid stagnation and circulation of overhe-
ated air.
Openings for incoming and outgoing air should be of
appropriate size, considering minimum required air ow
and maximum back pressure, values that can be che-
cked on the engine manual.
Opening for the air entrance should be near the back
part of the genset as close as possible to the ground.
If openings for air ow are not aligned with genset it may
be necessary to add air conduits to avoid any air disper-
sion (see gure).
02/06/10 84306-GB
Sample of outdoor installation with shelter