Specifications

Page 7
P/N XG0205
M40DV-PFC Peninsula Gas Fireplace
InstallationInstallation
InstallationInstallation
Installation
Horizontal Vent Installation
Rear Vent systems that terminate through a wall may comprise up to
seven different components:
A - Termination PTO-3
PTO-3F
B - Stucco Kits MSR (stucco frame)
MOSR (stucco can)
D - Flex sections PFL-1 (12" section)
PFL-2 (24" section)
PFL-3 (36" section)
PFL-4 (48" section)
E - Rigid sections PEXT-1 (12" section)
PEXT-2 (24" section)
PEXT-3 (36" section)
PEXT-4 (48" section)
F - Extensions PXT- 5 (5" section)
PXT-10 (10" section)
G - 90° elbow PEL-90F/F
PEL-90M/M
H - Heat Shield RHS101 ( for 5"/8" venting)
Short Configurations:
For installations straight through the wall, use an PTO-3/-3F
termination and PXT-5 or PXT-10 to achieve the desired length.
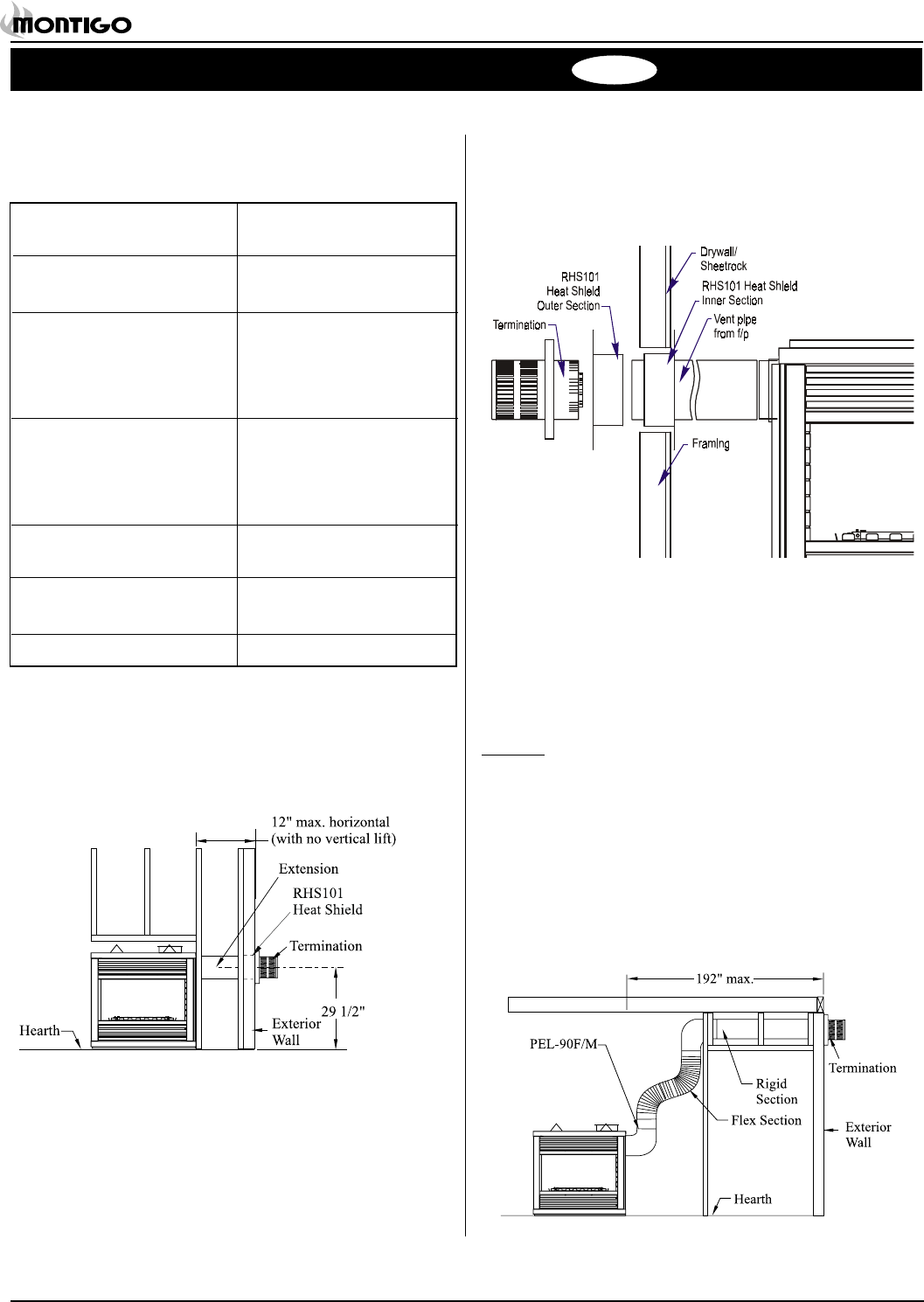
The maximum horizontal vent run with no vertical lift is 12". See
Figure 7.
Example:
A 10' section of rigid pipe and a 90° elbow may be used in conjunction
with a 3 ft. flex section (PFL-3) will, when extended in a chase, allow for
a maximum horizontal run of twelve and one-half feet from the centre
of the fireplace to outside wall and a minimum of 7'6" when retracted in
opposite direction. (See Figure 9.)
"D" flex sections and "E" solid sections may be used in conjunction with
one another to obtain different possible horizontal length installations.
NOTE: Flex section must not exceed maximum horizontal length of 4
feet, and for this application the top clearance is to the ceiling.
Long Vent Runs:
For longer or more complex vent runs, vertical lift is required. First
ensure that the planned run is acceptable using the Vent Graph. Plan
out the required components using the chart above. You may be able
to use fewer components using the chart below.
Figure 7. Short horizontal installation.
Figure 9. Extended horizontal installation using a combination of rigid
and flex venting.
Figure 8. Heat Shield for short horizontal installation. Install by sliding
over the vent pipe where it connects to the termination.
Heat Shields
Due to high flue temperatures, the heat shield (RHS101) must be used
on all straight through the wall installations, at the point where
the vent pipe connects to the termination. With the heat shield, the
framing dimensions for the terminations can be at 11" x 11". The heat
shield is not included with the fireplace.
To install the heat shield, slide one section over the vent pipe on the
inside of the wall opening, with the circular portion inside the wall cavity.
Screw the shield in place over the wall opening. Install the second
section on the outside of the wall opening sliding the circular portion into
the wall opening. Refer to Figure 8.
Rear Vent










