Specifications

P/N XG0205
Page 4
M40DV-PFC Peninsula Gas Fireplace
Installing The Gas Line
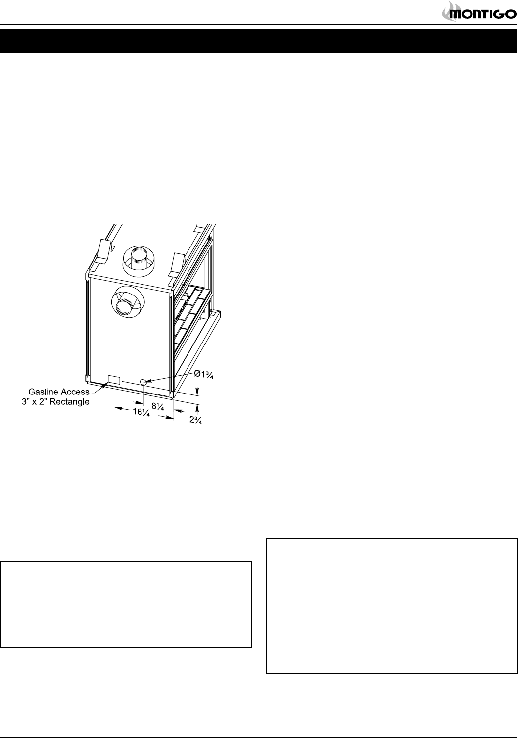
The gas line must be installed before finishing the M40DV-PFC
fireplace. Natural Gas requires a minimum inlet gas supply pressure of
5.5" W.C. & a manifold pressure of 3.5" W.C. Propane Gas requires a
minimum inlet gas supply pressure of 11" W.C. & a manifold pressure
of 10" W.C. Provision must also be made for a 1/8" N.P.T. plugged
tapping and be accessible for test gauge connection immediately
upstream of the gas supply controls to the appliance. The fireplace
gas connection and the main operating gas valve are located
behind the removable trim at the bottom of the unit and need only
be attached to the gas line with an approved fitting, as required by
the applicable installation codes.
* After gas line is connected each appliance connection,
valve and valve train must be checked while under normal
operating pressure with either a liquid solution, or leak
detection device, to locate any source of leak. Tighten any
areas where bubbling appears or leak is detected until
bubbling stops completely or leak is no longer detected. Do
NOT use a flame of any kind to test for leaks.
Installing The Remote Switch
The M40DV-PFC is equipped with a remote-operated valve for use
with a wall switch. See Figure 20 for information on wiring the switch.
The valve is pre-wired and generates its own power. DO NOT connect
any external power to it.
Note: The switch location must not exceed 30' from the fireplace.
Figure 3. Gas line access.
The appliance and its individual shutoff valve must be discon-
nected from the gas supply piping system during any pressure
testing of that system at test pressures in excess of 1/2 psig (3.5
kPa).
The appliance must be isolated from the gas supply piping system
by closing its individual manual shutoff valve during any pressure
testing of the gas supply piping system at test pressures equal to
or less than 1/2 psig (3.5 kPa).
Installation
Vent Installation
This section covers the installation of direct venting and terminations. For a
detailed diagram of allowed termination locations, see Appendix A.
Installation Requirements
n The M40DV-PFC fireplace uses Premium venting components with:
5" inner dia. /8" outer dia.
n Minimum clearance to combustible construction around the
vent pipe is 1" on all sides, except on horizontal venting where
the top of the pipe must have a clearance of at least 2".
n Use only certified Montigo vent components. (Use of other parts will
void the Montigo warranty, and may impede the operation of the
fireplace.)
n All joints must be secured with a minimum of two screws per joint
n Vent terminations must not be recessed in walls or siding
n Horizontal runs must be supported by a minimum of two supports
per horizontal run. A minimum of one screw on each side of
support is also required
n Flex vent sections may be stretched up to 50% of their total length
(eg. a 24" section may be stretched to 36")
n Maximum horizontal run for a flex section with no vertical rise is 3 feet.
n Flex vent sections over 3 feet must fall within the limits set by the
venting graph and must have a minimum vertical rise of 3 inches
per foot of flex.
n Venting components can be used in any combination of solid/rigid
n Solid vent sections may be cut less than half way from the tapered end
n Venting components can be used in any combination of solid/rigid
pipe or flex pipe and in any orientation (Male connectors can face
in any direction)
n Vent terminations can be very hot. If the termination is less than 7
feet above a public walkway, it should be fitted with a certified
Montigo Heat Guard. (Part no. PTKOG)
n Do not obstruct, or attempt to conceal, the vent termination. These
actions will affect the operation of the fireplace, and may be
hazardous.
n In heavy snow areas, take extra care to prevent snow buildup from
obstructing the vent termination.
CAUTIONS:










