Specifications

P/N XG0205
Page 20
M40DV-PFC Peninsula Gas Fireplace
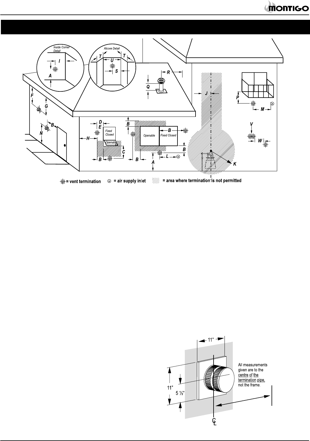
Appendix A - Termination Locations
A = clearance to the termination frame above grade, veranda, porch, deck, or
balcony [16 inches (41 cm) minimum]
B = clearance to door, or sides and top of window, that may be opened [16
inches (41 cm) minimum for appliances ≤100 000 BTU/H (30kW)]
C = clearance to bottom of window that may be opened horizontally [36 inches
(92 cm) minimum for appliances ≤100 000 BTU/H (30kW)]
D = no clearance to permanently closed window when installed with approved
glass penetration termination
E = clearance to permanently closed window [16 inches 41 cm recommended
to prevent condensation on window]
F = vertical clearance to ventilated soffit located above the termination within a
horizontal distance of 2 feet (61 cm) from the centreline of the termination [22
inches (56 cm) minimum]
G = clearance to unventilated soffit
[16inches (41 cm) minimum to non-combustibles]
[22 inches (56 cm) minimum to combustibles]
H = clearance to outside corner [9 inches (23 cm) minimum]
I = clearance to inside corner [12 inches (31 cm) minimum]
J = * not to be installed above a meter/regulator assembly within
40" (103 cm) horizontally from the centreline of the regulator
K = clearance to service regulator vent outlet [3 feet minimum in the United
States] [*6 feet (1.8 m) minimum in Canada]
L = clearance to nonmechanical air supply inlet to building or the combustion air
inlet to any other appliance [16 inches (41 cm) minimum for appliances
≤100 000 BTU/H (30kW)]
M = clearance to mechanical air supply inlet
[*6 feet (1.8 m) minimum]
N =
†
clearance above paved sidewalk or a paved driveway located on
public property [*7 feet (2.1 m) minimum]
P = clearance under veranda, porch, deck, or balcony
[16 inches (41 cm) minimum
‡
to non-combustibles]
[22 inches (56 cm) minimum
‡
to combustibles]
Q = clearance above a roof [24 inches (61 cm) minimum]
R = clearance to adjacent walls and neighbouring buildings
[18 inches (46 cm) minimum]
S = clearance from corner in recessed location
[12 inches (31 cm) minimum]
T = maximum depth in recessed location
[48 inches (122 cm) minimum]
U = minimum width for back wall of recessed location
[24 inches (61 cm) minimum]
V = no horizontal clearance between the frames of two terminations that are
level.
W = horizontal clearance between the frames of two terminations that are not
level. [36 inches (92 cm) minimum]
†
a vent shall not terminate directly above a sidewalk or paved driveway
which is located between two single family dwellings and serves both
dwellings
‡
only permitted if veranda, porch, deck, or balcony has an open side that
is equal to or greater than the depth of the enclosed area
* as specified in CGA B149 Installation Codes. Note: local Codes or
Regulations may require different clearances










