Installation Instructions
Table Of Contents

31-2000693 Rev. 1 5
2 B
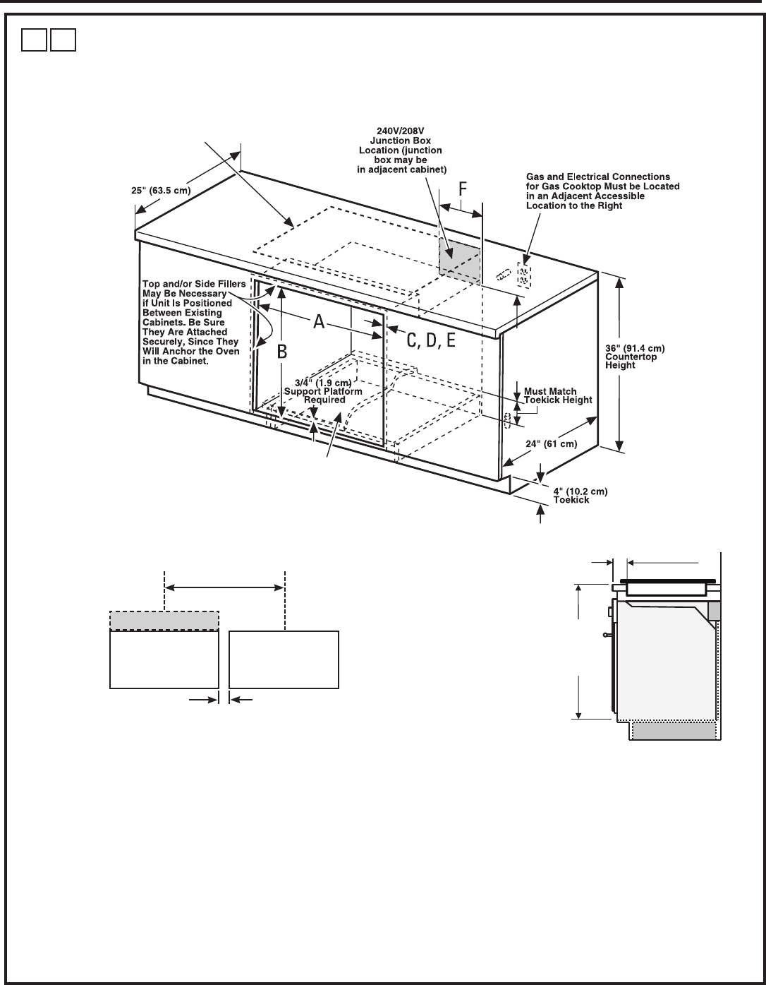
CUTOUT FOR STEAM OVENS - UNDER COUNTER
NOTE: These ovens are only approved to be installed under the specific models as labeled on the unit.
Installation Instructions
NOTE: One cooktop may be centered over either
oven in the side-by-side installation.
Cutout – observe
all dimensions and
requirements.
5-1/8” (13 cm) Min.
30.5” (77.5 cm)
Center Line Center Line
Side-by-Side Installations
Install two ovens in separate cutouts.
Cooktop
Cutout – observe
all dimensions and
requirements.
22” min.
(55.9 cm)
(23” min with
dropbox
models)
SIDE VIEW
Cooktop
Steam Oven
2-1/2” min. (6.4cm)
IMPORTANT: Maintain
a minimum distance
of 22” (55.9 cm) (23”
[58.4] min. for dropbox
models) from the
top surface of the
countertop to the steam
oven platform to ensure
that the cooktop and
steam oven do not
interfere with each other
(see picture).
Gas or Electric Cooktops May Be Installed Over
This Oven. See Cooktop Installation Instructions
for Cutout Size. See Label on the Outside of the
Oven for Approved Models.
MUST SUPPORT 170 lbs. (76.5 kg) FOR STEAM OVENS
22" (55.9 cm) Min.
(23" [58.4 cm] Min.
with Dropbox
Models) above
Platform Support










