Installation Instructions
Table Of Contents

31-2000693 Rev. 1 5
2 B
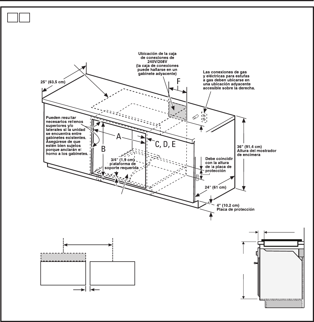
ESPACIO LIBRE PARA HORNOS A VAPOR – DEBAJO DE LA MESADA
NOTE: These ovens are only approved to be installed under the specific models as labeled on the unit.
Instrucciones de Instalación
IMPORTANTE: Deje
una distancia mín. de
22” (55,9 cm) mín.
de (23” [58,4 cm] en
Modelos con Buzón)
desde la supercie
superior de la mesada
hasta la plataforma
del horno a vapor, a
n de asegurar que la
supercie de cocción
y el horno a vapor no
intereran uno con
el otro (consulte la
imagen).
Abertura – cumpla
con todas las
dimensiones y
requerimientos.
5-1/8” (13 cm) Min.
30,5” (77,5 cm)
Línea central Línea central
Instalaciones lado a lado
Instale dos hornos en aberturas separadas.
Estufa
Abertura – cumpla
con todas las
dimensiones y
requerimientos.
NOTA: Una estufa puede centrarse sobre cualquier
horno en la instalación de lado a lado.
Pueden instalarse estufas a gas o eléctricas sobre este horno.
Ver las instrucciones de instalación de la estufa para el
tamaño de la abertura. Para Conocer los Modelos
Aprobados, Consulte la Etiqueta que se Encuentra
del lado Exterior del Horno.
DEBE SOPORTAR 170 lbs. (76.5 kg) PARA HORNOS A VAPOR
22" (55.9 cm) Mí
n.
(23"
[58.4 cm] Min.
with Dropbox
Models) above
Platform Support
22" (55,9 cm) mín.
(23" [58,4 cm] mín.
en Modelos con
Buzón) sobre la
plataforma de
soporte
Mín. de 22"
(55,9 cm)
(23" [58,4 cm]
mín. en Modelos
con Buzón)
VISTA LATERAL
Superficie de Cocción
Horno a Vapor
Mín. de 2 1/2” (6,4cm)










