Product Datasheet/Brochure

NOTES
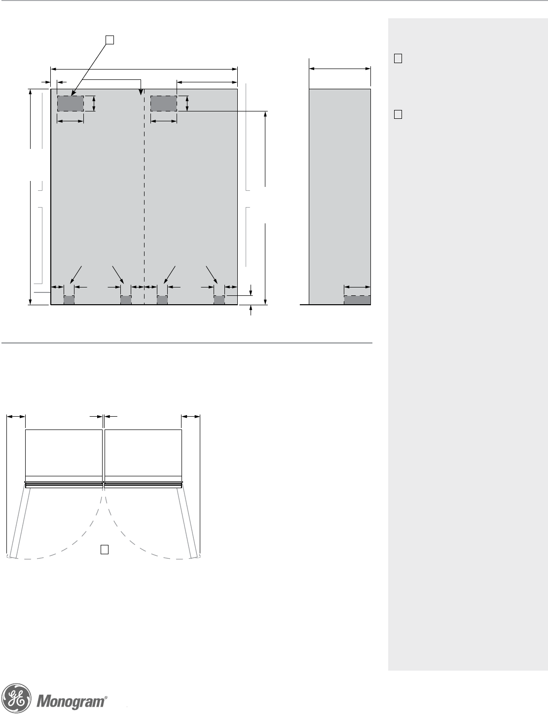
71 1/2" (181.6)
Finished Width
24" (60.9)
Min. Cutout Depth
24 3/16" (61.4)
2 5/16"
(5.9)
6"
(15.2)
10"
(25.4)
83 1/2" min
84 1/2" max
(212.1-214.6)
Finished Opening
ZIC360NXLH_ZIC360NXRH_ZICP360NXLH_ZICP360NXRH
ZICS360NXLH_ZICS360NXRH
FRONT VIEW
ELEC.
6"
(15.2)
10"
(25.4)
3 1/2"
(8.9)
25" min
(63.5)
To wall
25" min
(63.5)
To wall
1"
(2.5)
130˚
Door swing
130˚
Door swing
75"
(190.5 )
From floor
to bottom
of electrical
area
ELEC.
SIDE VIEW
5"
(12.7)
5"
(12.7)
5"
(12.7)
5"
(12.7)
WATER
10" (25.4)
WATER
3 1/2"
(9.0)
WATER
3 1/2"
(9.0)
A
A separate 115V, 60Hz, 15- or 20-amp
power supply is recommended for each
product.
Additional cutout width may be required when
side panels are used.
B
In a side-by-side installation of a left-
and-right-hand door swing product, 1”
clearance between the units is required.
Order ZUGSS2 European, ZUGPP2
Professional or ZUG2 custom panel unified
grille kit for one continuous grille panel.
DUAL PRODUCT CLEARANCES
DUAL INSTALLATIONS
71 1/2" (181.6)
Finished Width
24" (60.9)
Min. Cutout Depth
24 3/16" (61.4)
2 5/16"
(5.9)
6"
(15.2)
10"
(25.4)
83 1/2" min
84 1/2" max
(212.1-214.6)
Finished Opening
ZIC360NXLH_ZIC360NXRH_ZICP360NXLH_ZICP360NXRH
ZICS360NXLH_ZICS360NXRH
FRONT VIEW
ELEC.
6"
(15.2)
10"
(25.4)
3 1/2"
(8.9)
25" min
(63.5)
To wall
25" min
(63.5)
To wall
1"
(2.5)
130˚
Door swing
130˚
Door swing
75"
(190.5 )
From floor
to bottom
of electrical
area
ELEC.
SIDE VIEW
5"
(12.7)
5"
(12.7)
5"
(12.7)
5"
(12.7)
WATER
10" (25.4)
WATER
3 1/2"
(9.0)
WATER
3 1/2"
(9.0)
A
B
GE Monogram
®
36" Built-In Bottom-Freezer Refrigerator
Product Specification Created 6/14
ZICS360NHLH





