Quick Specification

Product Specication Revised 2/20
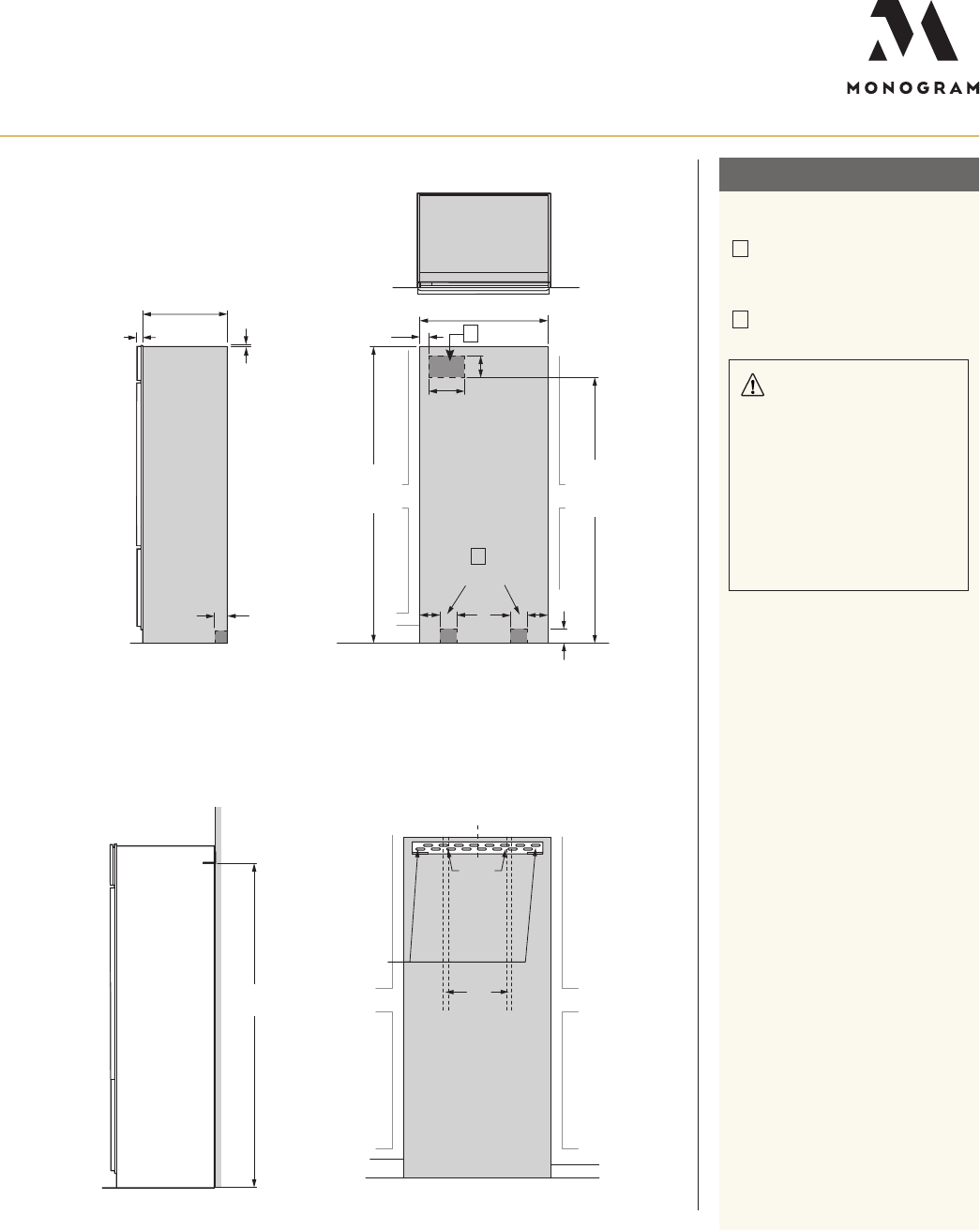
24" (61)
1 9/16"
(3.97)
35 1/2" (90.2)
2 5/16"
(5.874)
7/16"
(1.1)
Trim overlap
3 1/2"
(8.9)
75"
(190.5 )
From floor
to bottom
of electrical
area
*84
+
-
.500
(212.1-214.6)
*Trim will overlap
additional 7/16"
6"
(15.24)
10"
(25.4)
ELEC.
SIDE VIEW
FRONT VIEW
TOP VIEW
W
STANDARD INSTALLATION
ZIC360NHLH_RH
WATER
5"
(12.7)
5"
(12.7)
3 1/2"
(9.0)
3 1/2"
(8.9)
HELPFUL TIPS
For questions about your
appliance, please call 1-800-626-2000.
STANDARD INSTALLATION
PAGE 4 OF 17
A
Mounting the junction box in this
location will also allow for front
accessibility through access panel.
B
Water supply area.
WARNING:
e refrigerator is top heavy and
must be secured to prevent the
possibility of tipping forward.
Failure to do so may result in death
or serious injury.
e information below is for cabinet
design only. When installing the
anti-tip system you must use the
product installation instructions.
e information below applies to all
installation constructions:
• A wall bracket, bolts and toggles will
be supplied with the unit.
• e bolts will be used to attach
bracket to wall in 4 locations. Two
of the locations must penetrate the
center of the wall studs.
• e toggles are used for stability in
drywall and when metal studs are
encountered. Lag bolts are used in
wood studs.
• In installation opening, measure
81-1/2" from floor and draw a
horizontal line.
• Locate and mark the wall studs on
horizontal line. Verify at least two
studs have their centerlines within
the center 32-1/2" of installation
opening to ensure 2 wall studs are
penetrated.
• e bracket will be centered left
to right in opening with bottom of
bracket on the horizontal line.
• When unit is placed in opening, the
bracket tabs will align with openings
in back of the unit. e unit will
be secured to the bracket using
supplied “L” bolts.
See Installation Instructions for
detailed instructions.
A
STANDARD INSTALLATION
ANTI-TIP BRACKET
ZIC360NXRH
SIDE VIEW INSTALLED
WITH ANTI-TIP BRACKET
81 1/2"
(207.0)
Use two
additional hole
locations at end
of brackets
Wall
Studs
Bracket
mounted
into vertical
wall studs
centered
within the
cutout
C
Ensure holes
selected are
centered on
the studs
L
FRONT VIEW OF CUTOUT
WITH ANTI-TIP BRACKET
B










