Quick Specification

Product Specication Revised 2/20
For questions about your
appliance, please call 1-800-626-2000.
FLUSH INSET INSTALLATION
HELPFUL TIPS
PAGE 13 OF 17
A
Mounting the junction box in this
location will also allow for front
accessibility through access panel.
B
Water supply area.
WARNING:
e refrigerator is top heavy and
must be secured to prevent the
possibility of tipping forward. Failure
to do so may result in death or
serious injury.
e information below is for cabinet
design only. When installing the
anti-tip system you must use the
product installation instructions.
e information below applies to all
installation constructions:
• A wall bracket, bolts and toggles will
be supplied with the unit.
• e bolts will be used to attach
bracket to wall in 4 locations. Two
of the locations must penetrate the
center of the wall studs.
• e toggles are used for stability in
drywall and when metal studs are
encountered. Lag bolts are used in
wood studs.
• In installation opening, measure
82" from floor and draw a horizontal
line.
• Locate and mark the wall studs on
horizontal line. Verify at least two
studs have their centerlines within
the center 32-1/2" of installation
opening to ensure 2 wall studs are
penetrated.
• e bracket will be centered left
to right in opening with bottom of
bracket on the horizontal line.
• When unit is placed in opening, the
bracket tabs will align with openings
in back of the unit. e unit will be
secured to the bracket using supplied
“L” bolts.
See Installation Instructions for
detailed instructions.
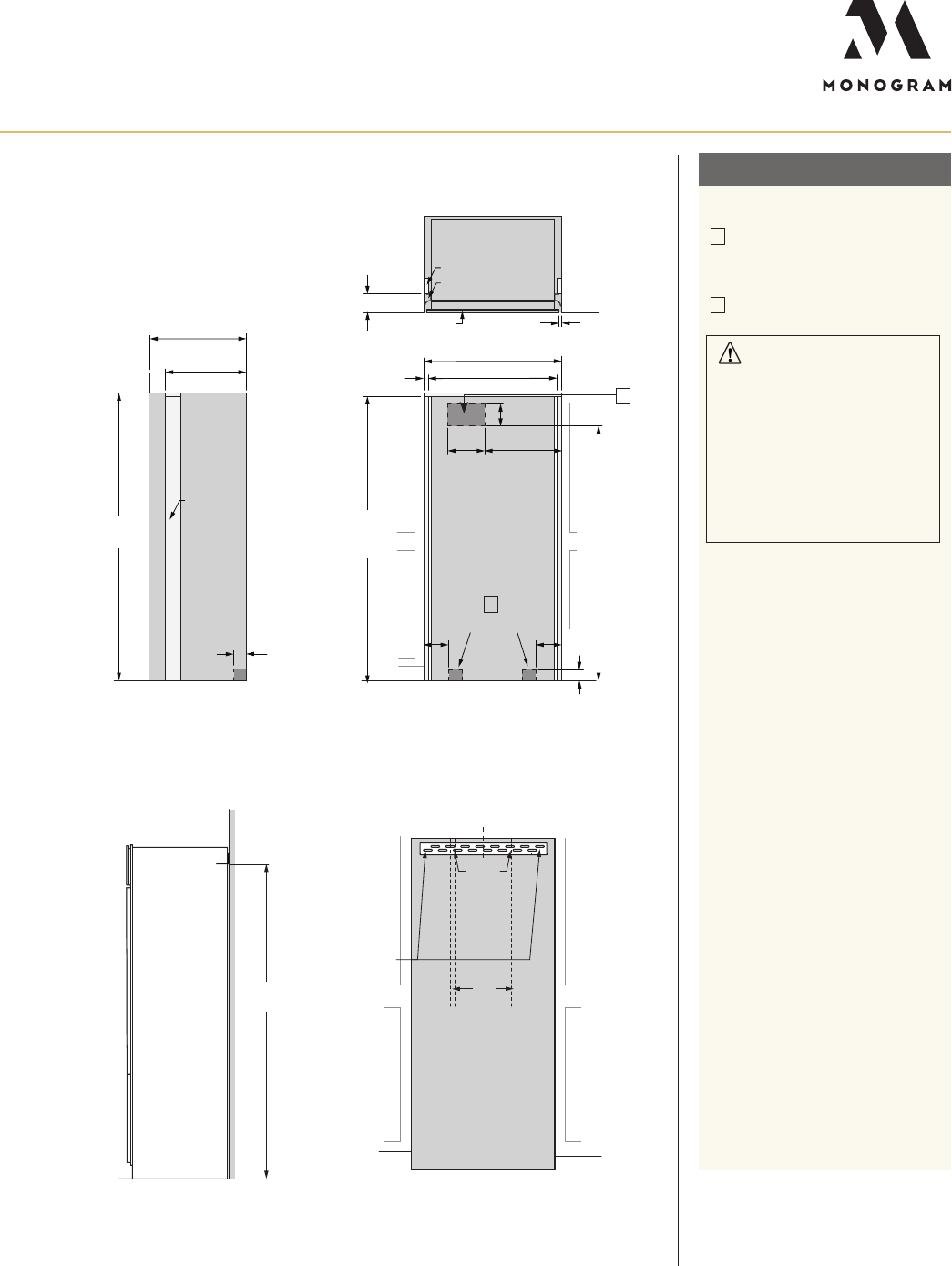
FLUSH INSTALLATION
ZIC360NHLH_RH
39" (99.1) Flush inset width
37 1/2" (95.3)
Width between cleats
3/4" (1.9)
Width of side cleats
5 3/8" (13.7)
1/2" (1.3)
26 3/16" (66.5)
Flush inset depth
20 13/16" (52.9)
Depth to cleat
FRONT VIEWSIDE VIEW
TOP VIEW
3 1/2"
(8.9)
W
Finished cleats
Finished cleats
Case Trim
1/2" Panel
Case
Door
6"
(15.2)
24 3/16"
(61.4)
7"
(17.8)
7"
(17.8)
10"
(25.4)
3 1/2"
(8.9)
75 1/2"
(191.8 )
From floor
to bottom
of electrical
area
ELEC.
84"
(213.4)
height
to cleat
85"
(215.9)
WATER
3 1/2"
(9.0)
FLUSH INSET INSTALLATION 1/2" PANELS
A
B
ANTI-TIP BRACKET
FLUSH INSET KIT ZKFN REQUIRED
ZIC360NXRH
SIDE VIEW INSTALLED
WITH ANTI-TIP BRACKET
81 1/2"
(207.0)
Use two
additional hole
locations at end
of brackets
Wall
Studs
Bracket
mounted
into vertical
wall studs
centered
within the
cutout
C
Ensure holes
selected are
centered on
the studs
L
FRONT VIEW OF CUTOUT
WITH ANTI-TIP BRACKET










