Specifications

ZHU30RDJBBMONOGRAM 30" INDUCTION COOKTOP
Product Specification Revised 1/18
NOTES
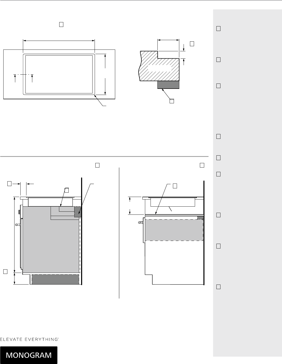
FLUSH MOUNT INSTALLATION
Countertop
ELEC.
Wall Oven
4 3/4"
(12.1) max
R 5/8" (1.6)
All Four Corners
3/4" (1.9)
Width of rabbet
in countertop
1/4" (0.6) max
Depth of rabbet
in countertop
21 1/8"
(53.7)
30" (76.2)
5 1/2"
(14.0) min
FRONT VIEW
X X
SIDE VIEW SIDE VIEW
ZHU30RSJSS
31 1/4"
(79.4) min
From top
surface of
countertop
to top
surface of
wall oven
platform
Countertop
ELEC.
Wall Oven
4 3/4"
(12.1) max
R 5/8" (1.6)
All Four Corners
3/4" (1.9)
Width of rabbet
in countertop
1/4" (0.6) max
Depth of rabbet
in countertop
21 1/8"
(53.7)
30" (76.2)
5 1/2"
(14.0) min
FRONT VIEW
X X
SIDE VIEW SIDE VIEW
ZHU30RSJSS
31 1/4"
(79.4) min
From top
surface of
countertop
to top
surface of
wall oven
platform
Countertop
ELEC.
Wall Oven
4 3/4"
(12.1) max
R 5/8" (1.6)
All Four Corners
3/4" (1.9)
Width of rabbet
in countertop
1/4" (0.6) max
Depth of rabbet
in countertop
21 1/8"
(53.7)
30" (76.2)
5 1/2"
(14.0) min
FRONT VIEW
X X
SIDE VIEW SIDE VIEW
ZHU30RSJSS
31 1/4"
(79.4) min
From top
surface of
countertop
to top
surface of
wall oven
platform
B
NOTES
A
Use optional JXFLUSH1 kit
to flush-mount the cooktop
into the countertop. Read
all installation instructions
supplied with cooktop and kit
before beginning installation.
B
To avoid hot cookware from
contacting the countertop
surface, the cooktop should
be installed at least 1/32"
higher than the countertop.
C
Use strips of wood or
solid-surface countertop
material to reinforce the
countertop below the flush-
mount rabbet. For an island
or peninsular installation
secure strips to all four sides,
otherwise just secure strips
to the front and back under
the cutout.
D
Note this cooktop is only
approved for installation
above specific wall ovens as
labeled on this unit.
E
When installing this cooktop
above a single wall oven, do
not install the bae.
F
When this cooktop is
installed above a flush-
mounted wall oven, the
clearance from the front
edge of the countertop to
the front edge of the cooktop
cutout is minimum 2-1/2" plus
the wall oven cleat setback.
G
The cooktop platform must
be a minimum height of
4-3/4" from the floor to
ensure that the handle does
not hit the floor when the
door is opened.
H
Warming drawers are
approved for installation
below only certain specified
cooktop models. See the
label attached to the top
of the warming drawer or
underside of the cooktop for
approved combinations.
I
When installing the cooktop
above a warming drawer, a
solid barrier must be installed
at least 5-1/2" from the top of
the countertop. Use any solid
material such as 1/4" thick
plywood. Allow at least 1/4"
air gap between the barrier
and the top of the warming
drawer.
For more details refer to the
installation instructions for this
product
FLUSH-MOUNT INSTALLATION
ABOVE WALL OVEN
FLUSH-MOUNT
INSTALLATION ABOVE
WARMING DRAWER
For more details, refer to the installation instructions for this product on Monogram.com.
Dimensions in parentheses are in centimeters unless otherwise noted.
I
D H
E
G
C
A
F
TOP VIEW OF CUTOUT
SECTION X–X
Through countertop showing
depth of rabbet for flush-
mount





