Specifications

ZHU30RDJBBMONOGRAM 30" INDUCTION COOKTOP
Product Specification Revised 1/18
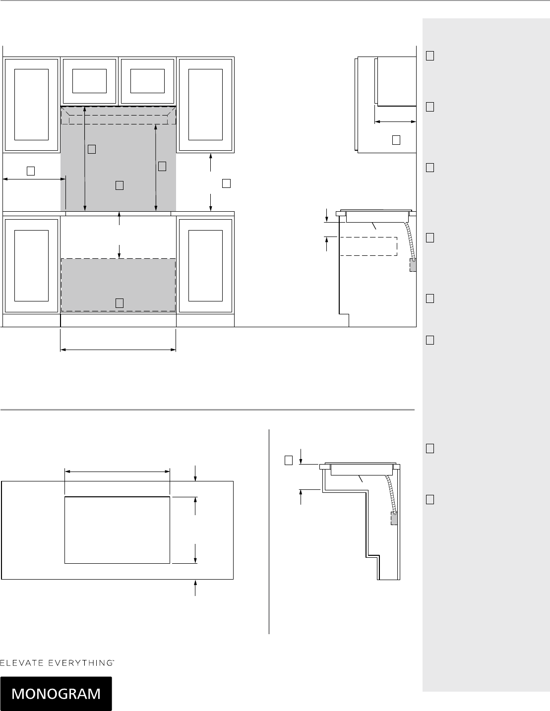
INSTALLATION
19 5/8" (49.9) min
19 3/4" (50.2) max
Cutout depth
5"
(12.7) min
3"
(7.6) min
16" (40.6) min
To electrical junction box
Locate electrical junction box
at least
16" below the countertop
15"
(38.1)
min
28 1/2" (72.4) min
28 5/8" (72.7) max
Cutout width
1 3/4" (4.5) min
Clearance between the
rear edge of the cutout
and the nearest wall
behind the cooktop
2 1/2" (6.4) min
Clearance between the
front edge of the cutout
and the front edge of the
countertop
30 " (76.2)
Cabinet base
SIDE VIEWFRONT VIEW
TOP VIEW OF CUTOUT SIDE VIEW
DRAWER
FRONT
ZHU30RSJSS
13"
(33.0) max
COUNTERTOP CUT-OUT
DIMENSIONS
ADA INSTALLATION
Dimensions in parentheses are in centimeters unless
otherwise noted.
A
B
C
D
E
H
F
G
NOTES
NOTES
A
Wall coverings, countertop
and cabinets surrounding
cooktop must be able to
withstand temperatures of
up to 200ºF.
B
Minimum 30" clearance
from countertop to
unprotected overhead
surfaces, when no
ventilation hood or
microwave oven is installed.
C
When using a ventilation
hood or microwave
oven above the cooktop,
see hood or microwave
installation instructions
for minimum overhead
clearance dimensions.
D
Minimum 15" of clearance
from countertop to nearest
overhead surface on both
sides of cooktop. Make sure
to include any lighting rail
covers in calculation.
E
Minimum 2" distance from
edge of cutout to nearest
adjacent side wall below
upper cabinets.
F
Install an approved
junction box where it can
be easily reached through
the front of the cabinet
where the cooktop is
located. IMPORTANT: For
serviceability, the junction
box must be located where
it will allow considerable
slack in the 48" long
conduit.
G
Maximum 13" depth of
unprotected overhead
surfaces, when no
ventilation hood or
microwave oven is installed.
H
For Americans with
Disabilities Act (ADA)
forward approach
installation: Minimum 5"
clearance between the
top of the countertop
and the enclosure. The
enclosure must be made
of at least 1/4" thick wood
material, and must have
an access panel installed
in order to provide access
to the junction box and
hold-down brackets, and
to allow for service of the
cooktop.
For more details refer to the
installation instructions for
this product.





