Installation Instructions
Table Of Contents

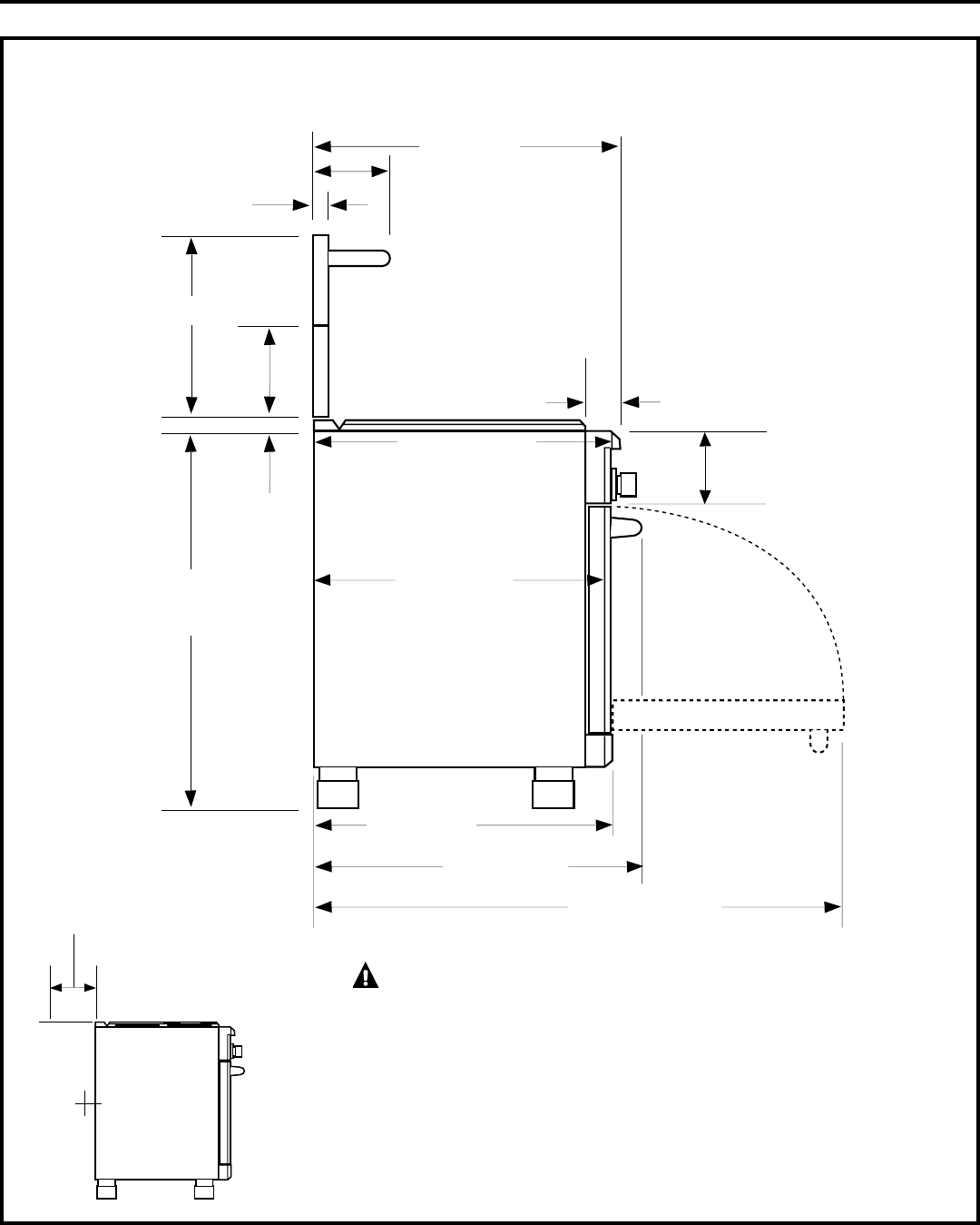
PRODUCT DIMENSIONS AND CLEARANCES
Design Information
48”, 36” and 30” Range Models
WARNING










