Installation Instructions
Table Of Contents

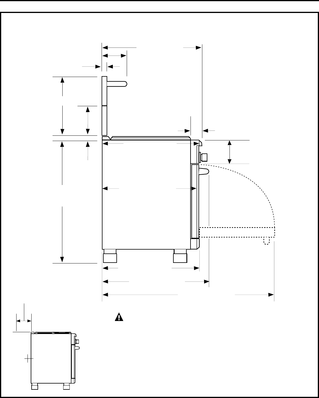
DIMENSIONES Y ESPACIOS DEL PRODUCTO
Información de diseño
Modelos de cocinas de 48”, 36” y 30”
57
12” mín. respecto de materiales
combustibles o 0” respecto de
materiales no combustibles sobre
la superficie de cocción
48-1/4” con la puerta
del horno abierta
31-1/16” Hasta
el frente de la manija
35-1/4”
a
36-3/4”
30-36”
12”
13/16”
10-1/2”
28-7/8”
hasta el lado
frontal
27-1/2” hasta
el lado biselado
– Profundidad
máxima de gabinete
adyacente para
instalaciones a nivel
28-1/4” Hasta
el frentede la puerta
Accesorios
opcionales
para
salpicadero
Espacio de
0” respecto
de una pared
trasera
o lateral debajo
de la superficie
de cocción
ADVERTENCIA:
El accesorio para salpicadero de
acero inoxidable de 12” de altura
debe instalarse en combinación
con un salpicadero no combustible
a medida.
El salpicadero terminado debe cubrir
toda la pared trasera hasta la parte
inferior de una capucha, o cuando
no haya una capucha, 48” respecto
de elementos combustibles.
3-3/16”
Profundidad del
panel de control
7” altura
del panel de control
28-1/4” hasta
el borde biselado
del lado redondeado
del panel de control
1-1/2”










