Installation Instructions
Table Of Contents
- English
- Safety Information
- Design Information
- Installation Preparation
- Installation Instructions
- Step 1, Remove Packaging
- Step 2, Move Range Indoors
- Step 3, Install Anti-Tip Device
- Step 4, Connect Range to Gas
- Step 5, Connect Electrical
- Step 6, Roll Range into Position
- Step 7, Level the Range
- Step 8, Replace Oven Doors
- Step 9, Check Burners
- Finalize Installation
- Installation Checklist
- Accessories
- Accessory Installation
- Gas Conversion
- Français
- Consignes de securité
- Caractéristiques
- Préparation de l’installation
- Consignes d’installation
- Étape 1, Sortez l’appareil de son emballage
- Étape 2, Déplacez la cuisinière à l’intérieur
- Étape 3, Installez le support anti-basculement
- Étape 4, Raccordez la cuisinière à l’alimentation en gaz
- Étape 5, Branchez la cuisinière à la prise électrique
- Étape 6, Placez la cuisinière dans sa position en la faisant rouler
- Étape 7, Ajustez le niveau de la cuisinière
- Étape 8, Réinstallez les portes du four
- Étape 9, Vérifiez les brûleurs
- Terminez l’installation
- Liste de vérification pour l’installation
- Accessoires
- Installation des accessoires
- Conversion de la cuisinière pour le gaz
- Español
- Información de seguridad
- Información de diseño
- Preparación para la instalación
- Instrucciones de instalación
- Paso 1, Quite el empaque
- Paso 2, Traslade la cocina al interior
- Paso 3, Instale el dispositivo anti-volcaduras
- Paso 4, Conecte la cocina al suministro de gas
- Paso 5, Conecte la electricidad
- Paso 6, Coloque la cocina en su posición
- Paso 7, Nivele la cocina
- Paso 8, Reemplace las puertas del horno
- Paso 9, Controle los quemadores
- Finalice la instalación
- Lista de control de la instalación
- Accesorios
- Instalación de accesorios
- Conversión de gas

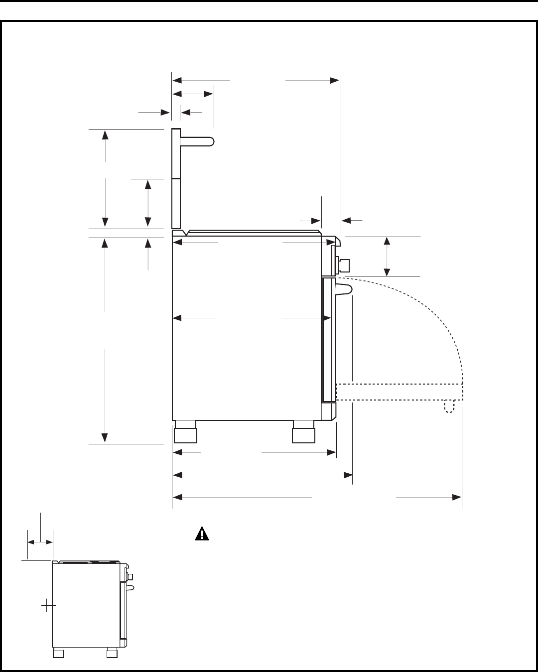
PRODUCT DIMENSIONS AND CLEARANCES
Design Information
48", 36" and 30" Range Models
7
12" Min. to combustibles or 0" to
a non-combustible material above
the cooking surface
48-1/4"
With Oven Door Open
31-1/16"
To Front of Handle
35-1/4"
to
36-3/4"
30-36"
12"
13/16"
10-1/2"
2
8-7/8"
To Front Edge
27-1/2" To
Beveled Edge –
Maximum
Adjacent Cabinet
Depth for
Flush Installation
28-1/4"
To Front of Door
Optional
Backsplash
Accessories
0" Clearance
to a back or
side wall below
the cooking
surface
WARNING:
The 12" high stainless steel
backsplash accessory must be
installed in combination with a
custom non-combustible backsplash.
The finished backsplash must cover
the entire back wall up to the bottom
of a hood, or when there is no hood,
48" to combustibles.
3-3/16"
Control Panel
Depth
7" Control Panel
Height
28-1/4" To
Beveled
Edge of Control
Panel Bullnose
1"










