Installation Instructions
Table Of Contents
- English
- Safety Information
- Design Information
- Installation Preparation
- Installation Instructions
- Step 1, Remove Packaging
- Step 2, Move Range Indoors
- Step 3, Install Anti-Tip Device
- Step 4, Connect Range to Gas
- Step 5, Connect Electrical
- Step 6, Roll Range into Position
- Step 7, Level the Range
- Step 8, Replace Oven Doors
- Step 9, Check Burners
- Finalize Installation
- Installation Checklist
- Accessories
- Accessory Installation
- Gas Conversion
- Français
- Consignes de securité
- Caractéristiques
- Préparation de l’installation
- Consignes d’installation
- Étape 1, Sortez l’appareil de son emballage
- Étape 2, Déplacez la cuisinière à l’intérieur
- Étape 3, Installez le support anti-basculement
- Étape 4, Raccordez la cuisinière à l’alimentation en gaz
- Étape 5, Branchez la cuisinière à la prise électrique
- Étape 6, Placez la cuisinière dans sa position en la faisant rouler
- Étape 7, Ajustez le niveau de la cuisinière
- Étape 8, Réinstallez les portes du four
- Étape 9, Vérifiez les brûleurs
- Terminez l’installation
- Liste de vérification pour l’installation
- Accessoires
- Installation des accessoires
- Conversion de la cuisinière pour le gaz
- Español
- Información de seguridad
- Información de diseño
- Preparación para la instalación
- Instrucciones de instalación
- Paso 1, Quite el empaque
- Paso 2, Traslade la cocina al interior
- Paso 3, Instale el dispositivo anti-volcaduras
- Paso 4, Conecte la cocina al suministro de gas
- Paso 5, Conecte la electricidad
- Paso 6, Coloque la cocina en su posición
- Paso 7, Nivele la cocina
- Paso 8, Reemplace las puertas del horno
- Paso 9, Controle los quemadores
- Finalice la instalación
- Lista de control de la instalación
- Accesorios
- Instalación de accesorios
- Conversión de gas

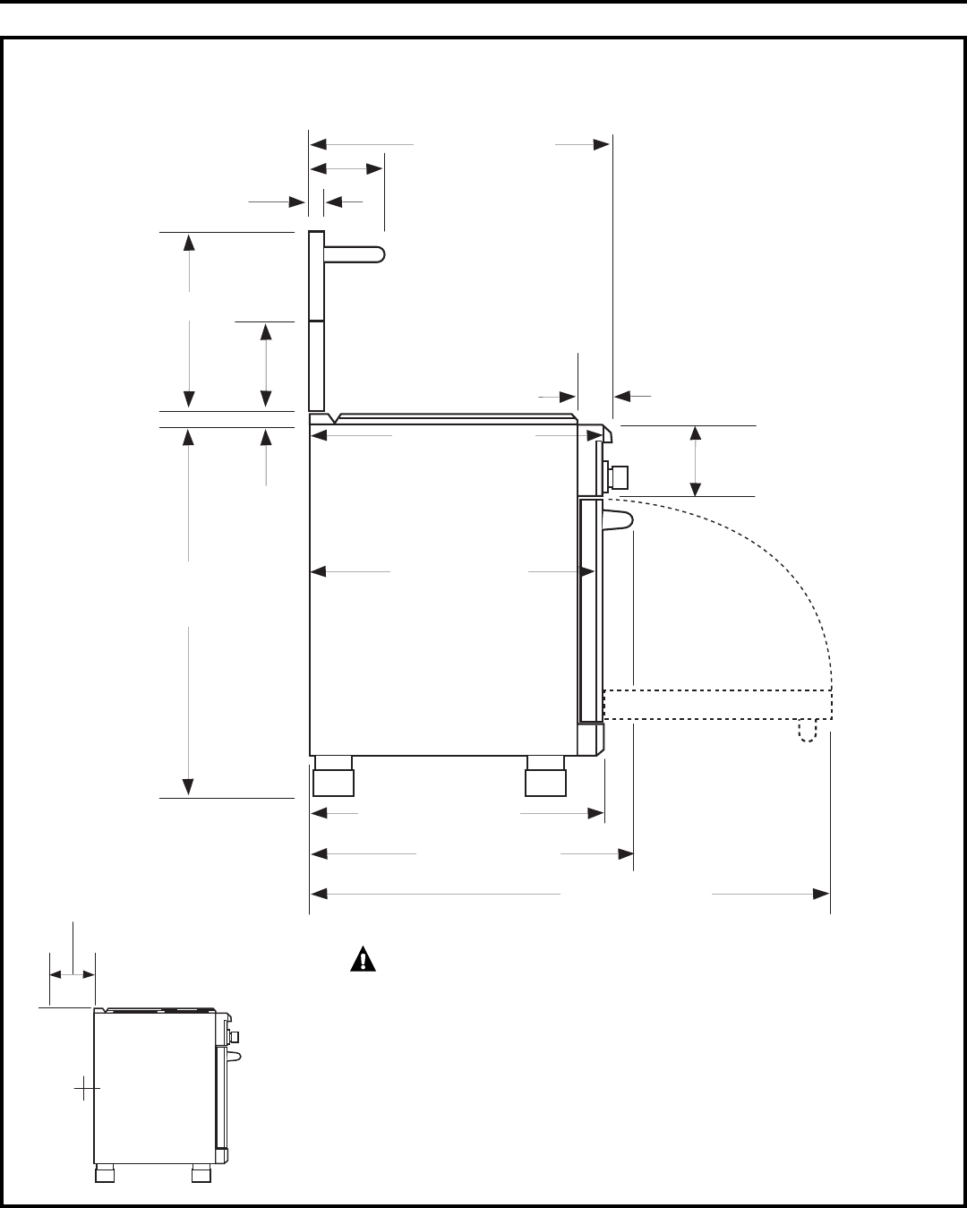
DIMENSIONES Y ESPACIOS DEL PRODUCTO
Información de diseño
Modelos de cocinas de 48", 36" y 30"
51
12" mín. respecto de materiales
combustibles o 0" respecto de
materiales no combustibles sobre
la superficie de cocción
48-1/4" con la puerta
del horno abierta
31-1/16" Hasta
el frente de la manija
35-1/4"
a
36-3/4"
30-36"
12"
13/16"
10-1/2"
2
8-7/8"
hasta el lado frontal
27-1/2" hasta
el lado biselado –
Profundidad máxima
de gabinete
adyacente para
instalaciones a nivel
28-1/4" Hasta
el frentede la puerta
Accesorios
opcionales para
salpicadero
Espacio de 0"
respecto de una
pared trasera
o lateral debajo
de la superficie
de cocción
ADVERTENCIA:
El accesorio para salpicadero de
acero inoxidable de 12" de altura
debe instalarse en combinación
con un salpicadero no combustible
a medida.
El salpicadero terminado debe cubrir
toda la pared trasera hasta la parte
inferior de una capucha, o cuando
no haya una capucha, 48" respecto
de elementos combustibles.
3-3/16"
Profundidad del
panel de control
7" altura
del panel de control
28-1/4" hasta
el borde biselado
del lado redondeado
del panel de control
1"










