Installation Instructions
Table Of Contents
- English
- Safety Information
- Design Information
- Installation Preparation
- Installation Instructions
- Step 1, Remove Packaging
- Step 2, Move Range Indoors
- Step 3, Install Anti-Tip Device
- Step 4, Connect Range to Gas
- Step 5, Connect Electrical
- Step 6, Roll Range into Position
- Step 7, Level the Range
- Step 8, Replace Oven Doors
- Step 9, Check Burners
- Finalize Installation
- Installation Checklist
- Accessories
- Accessory Installation
- Gas Conversion
- Français
- Consignes de securité
- Caractéristiques
- Préparation de l’installation
- Consignes d’installation
- Étape 1, Sortez l’appareil de son emballage
- Étape 2, Déplacez la cuisinière à l’intérieur
- Étape 3, Installez le support anti-basculement
- Étape 4, Raccordez la cuisinière à l’alimentation en gaz
- Étape 5, Branchez la cuisinière à la prise électrique
- Étape 6, Placez la cuisinière dans sa position en la faisant rouler
- Étape 7, Ajustez le niveau de la cuisinière
- Étape 8, Réinstallez les portes du four
- Étape 9, Vérifiez les brûleurs
- Terminez l’installation
- Liste de vérification pour l’installation
- Accessoires
- Installation des accessoires
- Conversion de la cuisinière pour le gaz
- Español
- Información de seguridad
- Información de diseño
- Preparación para la instalación
- Instrucciones de instalación
- Paso 1, Quite el empaque
- Paso 2, Traslade la cocina al interior
- Paso 3, Instale el dispositivo anti-volcaduras
- Paso 4, Conecte la cocina al suministro de gas
- Paso 5, Conecte la electricidad
- Paso 6, Coloque la cocina en su posición
- Paso 7, Nivele la cocina
- Paso 8, Reemplace las puertas del horno
- Paso 9, Controle los quemadores
- Finalice la instalación
- Lista de control de la instalación
- Accesorios
- Instalación de accesorios
- Conversión de gas

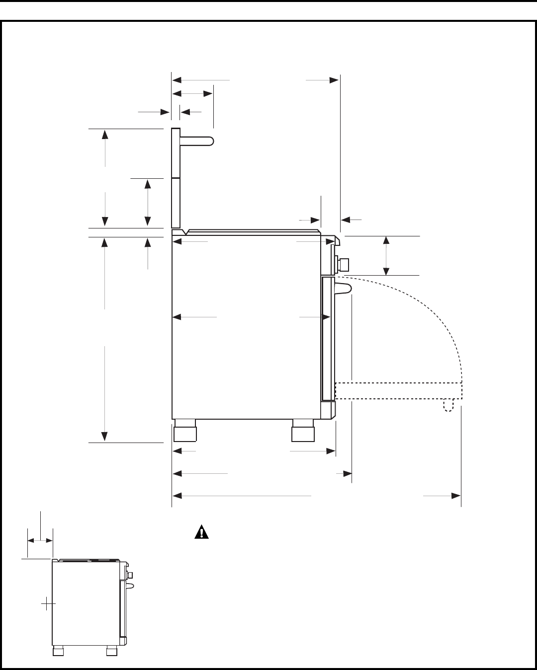
DIMENSIONS DE L’APPAREIL ET ESPACES
Caractéristiques
Modèles de cuisinière 76 cm (30"), 91 cm (36") et 121 cm (48")
29
30,5 cm (12") min par rapport
aux matériaux inflammables ou 0
par rapport aux matériaux ignifuges
au-dessus de la surface de cuisson
48-1/4" (121,28 cm)
avec la porte du four ouverte
31-1/16" (78,58 cm)
jusqu'à l'avant de la poignée
35-1/4" (88,26 cm)
à
36-3/4" (89,53 cm)
30–36"
(76–91 cm)
12"
(30 cm)
13/16" (2 cm)
10-1/2" (24,13 cm)
2
8-7/8" (68,89 cm)
jusqu'au bord avant
27-1/2" (67,31 cm)
par rapport au bord
en biseau –
Profondeur maximum
du placard adjacent
pour un encastrement
parfait
28-1/4" (70,96 cm)
jusqu'à l'avant de la porte
Dosseret
en option
Espace
par rapport
à un mur arrière
ou latéral sous
la surface
de cuisson
AVERTISSEMENT :
Le un dosseret de 12" (30 cm) en acier
inoxydable doit être installé avec un
dosseret ignifuge personnalisé.
Le dosseret fini doit recouvrir la totalité
du mur arrière jusqu’au bas de la hotte,
ou en l’absence de hotte, 48" (121 cm)
aux matériaux inflammables.
3-3/16" Profondeur
du panneau de
commande (7,14 cm)
7" Hauteur du panneau
de commande (17,78 cm)
28-1/4" (70,48 cm)
jusqu'au bord
en biseau du chanfrein
arrondi du panneau
de commande
1"










