Specs Sheet

ZHU36RSJSSGE Monogram
®
36" Induction Cooktop
NOTES
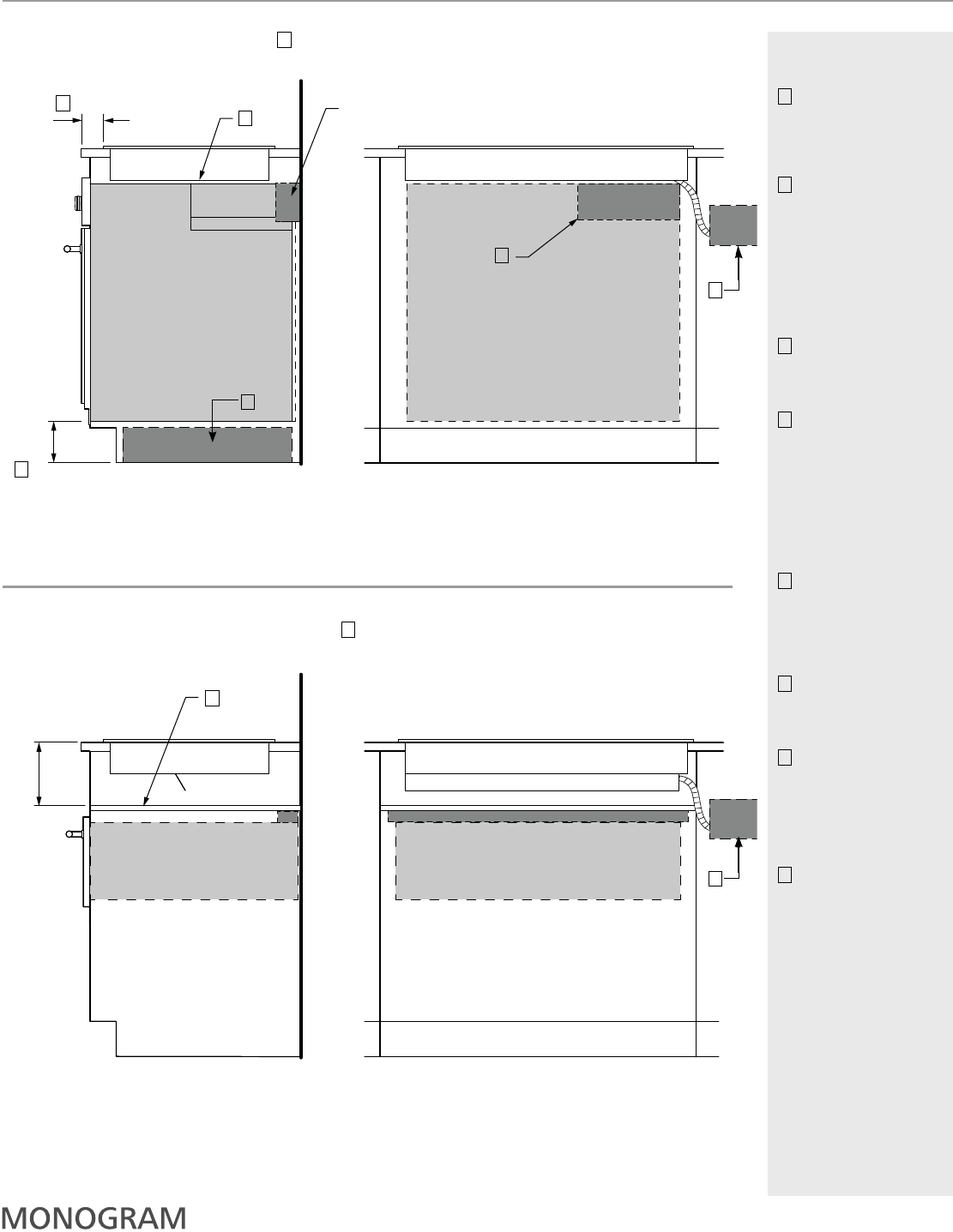
INSTALLATION ABOVE WALL OVEN
5"
(12.7) min
ELECTRIC
Wall oven
ELECTRIC
Wall oven
ELEC.
cooktop
ELEC.
cooktop
4 3/4"
(12.1) max
SIDE VIEW FRONT VIEW
SIDE VIEW FRONT VIEW
ZHU36RSJSS
NOTES
A
Note this cooktop is only
approved for installation
above specific wall
ovens as labeled on
this unit.
B
Warming drawers are
approved for installation
below only certain
specified cooktop
models. See the label
attached to the top of
the warming drawer
or underside of the
cooktop for approved
combinations.
C
When installing this
cooktop above a single
wall oven, do not install
the baffle.
D
When this cooktop is
installed above a flush-
mounted wall oven, the
clearance from the front
edge of the countertop
to the front edge of
the cooktop cutout is
minimum 2-1/2” plus
the wall oven cleat
setback.
E
Maximum toe kick
height of 4” when
installed above a
certified wall oven (4-
3/4” including thickness
of support platform).
F
Junction box location
for wall oven (may also
be located in adjacent
cabinet).
G
Electrical connection
for cooktop must be
located in an accessible
adjacent location to
the right (may also be
located in adjacent
cabinet).
H
When installing the
cooktop above a
warming drawer, a solid
barrier must be installed
at least 5” from the top
of the countertop. Use
any solid material such
as 1/4” thick plywood.
Allow at least a 2” air
gap between the front
of the barrier and the
inside of the cabinet
and at least 1/4” air gap
between the barrier and
the top of the warming
drawer.
For more details refer to the
installation instructions for
this product
INSTALLATION ABOVE WARMING DRAWER
For more details, refer to the installation instructions for this product on Monogram.com.
Dimensions in parentheses are in centimeters unless otherwise noted.
D
G
G
Product Specification Created 2/15
D
E
H
C
A
F
B