Specs Sheet

ZHU36RSJSSGE Monogram
®
36" Induction Cooktop
NOTES
INSTALLATION
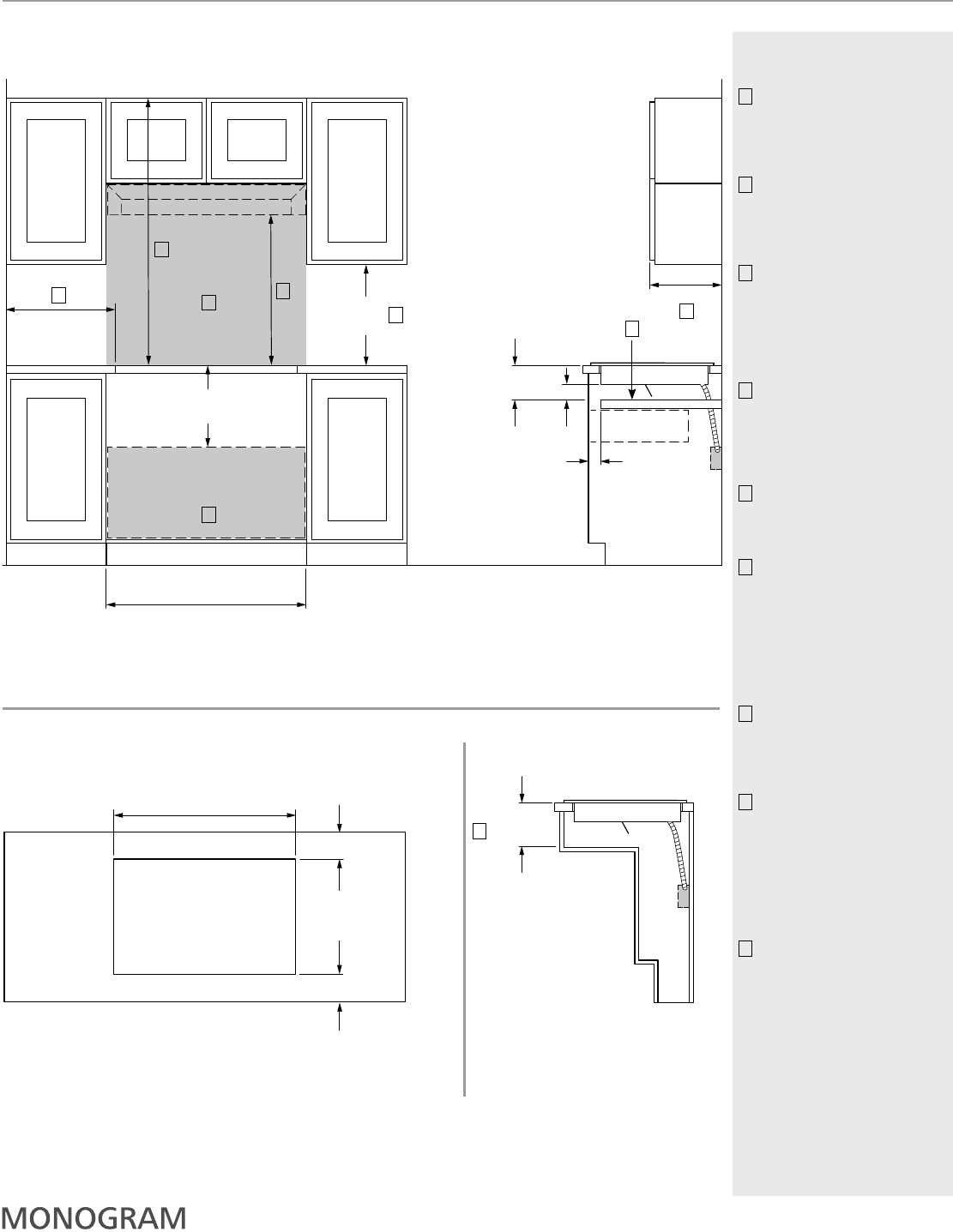
19 1/8" (48.6) min
19 1/4" (48.9) max
Cutout depth
8"
(20.3) min
5"
(12.7) min
5"
(12.7) min
2"
(5.1) min
Air gap
16" (40.6) min
To electrical junction box
Locate electrical junction box
at least
16" below the countertop
15"
(38.1)
min
13"
(33.0) max
33 7/8" (86.0) min
34" (86.3) max
Cutout width
1 3/4" (4.5) min
Clearance between the
rear edge of the cutout
and the nearest wall
behind the cooktop
2 1/2" (6.4) min
Clearance between the
front edge of the cutout
and the front edge of the
countertop
36 " (91.4)
Cabinet base
SIDE VIEWFRONT VIEW
TOP VIEW OF CUTOUT SIDE VIEW
DRAWER
FRONT
ZHU36RSJSS
NOTES
A
Wall coverings, countertop
and cabinets surrounding
cooktop must be able to
withstand temperatures of up
to 200ºF.
B
Minimum 30” clearance from
countertop to unprotected
overhead surfaces, when no
ventilation hood or microwave
oven is installed.
C
When using a ventilation
hood or microwave oven
above the cooktop, see hood
or microwave installation
instructions for minimum
overhead clearance
dimensions.
D
Minimum 15” of clearance
from countertop to nearest
overhead surface on both
sides of cooktop. Make sure to
include any lighting rail covers
in calculation.
E
Minimum 2” distance from
edge of cutout to nearest
adjacent side wall below upper
cabinets.
F
Install an approved junction
box where it can be easily
reached through the front of
the cabinet where the cooktop
is located. IMPORTANT: For
serviceability, the junction box
must be located where it will
allow considerable slack in the
48” long conduit.
G
Maximum 13” depth of
unprotected overhead
surfaces, when no ventilation
hood or microwave oven is
installed.
H
When installing the cooktop
above a cabinet drawer, a
solid barrier must be installed
at least 5” from the bottom
of the cooktop. Use any solid
material such as 1/4” thick
plywood. Allow at least 1/4” air
gap between the barrier and
the top of the cabinet drawer.
I
For Americans with Disabilities
Act (ADA) forward approach
installation: Minimum 5”
clearance between the top
of the countertop and the
enclosure. The enclosure must
be made of at least 1/4” thick
wood material, and must have
an access panel installed in
order to provide access to the
junction box and hold-down
brackets, and to allow for
service of the cooktop.
For more details refer to the
installation instructions for this
product.
COUNTERTOP CUT-OUT DIMENSIONS ADA INSTALLATION
Dimensions in parentheses are in centimeters unless otherwise noted.
Product Specification Created 2/15
B
A
C
D
I
E
G
F
H