Specifications

25
53D9036. Rev 1 03/03
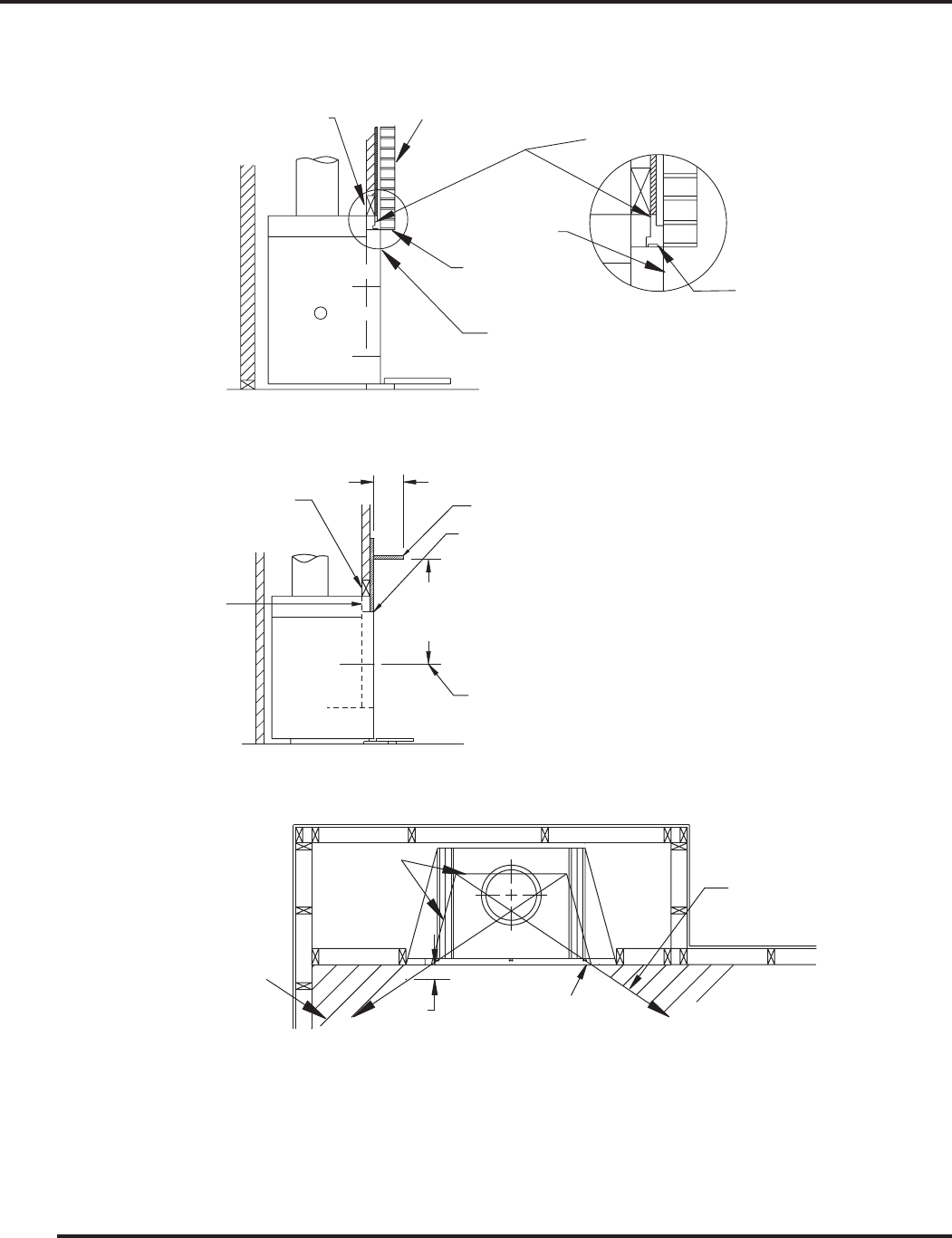
COMBUSTIBLE
SURROUND
PLACEMENT
COMBUSTIBLE SURROUND MATERIALS
COMBUSTIBLE SURROUND MATERIALS
MAY BE PLACED INSIDE THE SHADED
MAY BE PLACED INSIDE THE SHADED
AREAS. COMBUSTIBLES MAY NOT
AREAS. COMBUSTIBLES MAY NOT
OVERLAP EDGE OF BLACK PAINTED
OVERLAP EDGE OF BLACK PAINTED
FACE MORE THAN 1/8".
FACE MORE THAN 1/8".
DO NOT RESTRICT
DO NOT RESTRICT
SIDE AIR INLETS
SIDE AIR INLETS
2 1/2"
2 1/2"
(REF.)
(REF.)
EXTEND LINE FROM OPPOSITE
EXTEND LINE FROM OPPOSITE
REAR CORNER OF FIREBOX
REAR CORNER OF FIREBOX
PAST INSIDE OPENING OF THE
PAST INSIDE OPENING OF THE
FRONT FACE SIDE PANEL.
FRONT FACE SIDE PANEL.
OUTLINE OF
FIREPLACE
FIREBRICK
GLASS DOOR INSTALLATION
This fireplace has been tested and listed for use with optional Model WSB54 glass doors. For installation of
the Model WSB54 glass doors, see the instructions provided with the doors.
TRIM AND DOOR INSTALLATION
FIGURE 24
TOP EDGE OF FIREPLACE
COMBUSTIBLE MANTEL
USE ONLY
NON-COMBUSTIBLE
MATERIALS BELOW
TOP OF SPACERS
COMBUSTIBLE FRAMING
MEMBERS TO
TOP OF SPACERS
12"
MAX
18" MIN. FROM FIREPLACE OPENING
TO BOTTOM OF COMBUSTIBLE MANTEL.
TO BOTTOM OF COMBUSTIBLE MANTEL.
(MANUFACTURER RECOMMENDATION)
TOP EDGE OF
FIREPLACE OPENING
MANTEL INST
MANTEL INST
ALLATION
TION
FIGURE 25
FIGURE 26A
INSTALLATION OF NON-COMBUSTIBLE FACING MATERIALS TO THE FRONT FACE OF THE FIREPL
INSTALLATION OF NON-COMBUSTIBLE FACING MATERIALS TO THE FRONT FACE OF THE FIREPL
ACE
COMBUSTIBLE FRAMING
MEMBERS FACING MATERIAL
TO TOP OF SPACERS.
CAUTION: DO NOT COVER
OR RESTRICT SIDE VENT
AREAS WITH SURROUND
OR TRIM MATERIALS.
USE ONLY NON-COMBUSTIBLE
MATERIALS BELOW TOP OF SPACERS.
NON-COMBUSTIBLE
FACING MATERIAL
FIREPLACE
FACE
STEEL LINTEL
(OPTIONAL)
WARNING:
THE SPACE BETWEEN THE
FACE OF THE FIREPLACE
AND THE NON-COMBUSTIBLE
AND THE NON-COMBUSTIBLE
FACING MATERIAL MUST
MUST BE SEALED. FAILURE
MUST BE SEALED. FAILURE
TO PROPERLY SEAL THIS
CRACK CAN CAUSE A
POSSIBLE FIRE HAZARD AND
POSSIBLE FIRE HAZARD AND
WILL VOID THE WARRANTY.










