Specifications
Manuals
Brands
Monessen Hearth Manuals
Home building and Decor
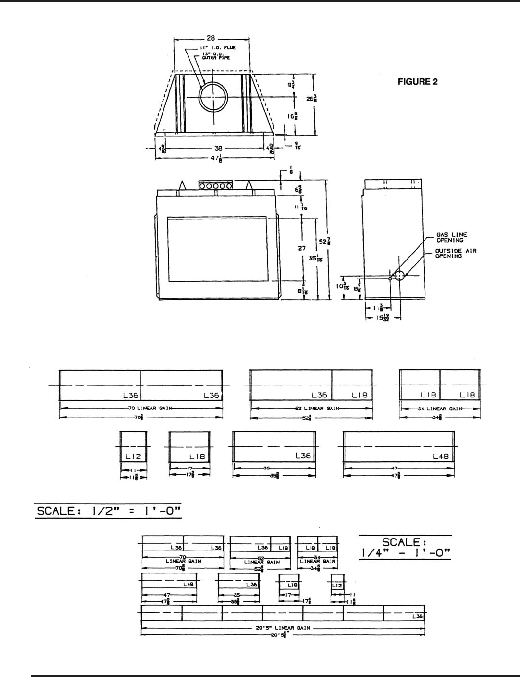
HWB600
1
2
3
4
5
6
7
8
9
10
C
LEARANCES
5
53D9035. Rev 1 03/03
1
...
...
4
5
6
7
8
...
...
76