Specifications

6
4
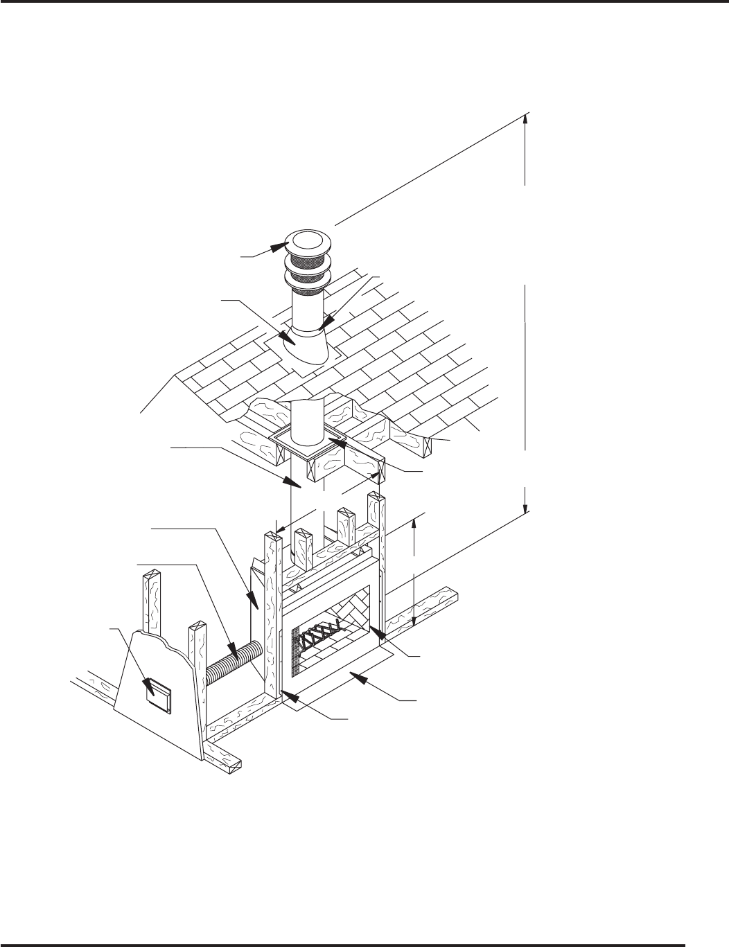
CLEARANCES
RESIDENTIAL INSTALLATION
53 3/8"
53 3/8"
MAINTAIN 2" MIN. AIR SPACE
MAINTAIN 2" MIN. AIR SPACE
BETWEEN CHIMNEY AND
BETWEEN CHIMNEY AND
COMBUSTIBLES
COMBUSTIBLES
L12 (1' PIPE)
L12 (1' PIPE)
L18 (11/2' PIPE)
L18 (11/2' PIPE)
L36 (3' PIPE)
L36 (3' PIPE)
L48 (4' PIPE)
L48 (4' PIPE)
FLUE OUTLET HEIGHT
FLUE OUTLET HEIGHT
15 FT=MIN. HEIGHT (NO OFFSETS)
15FT=MIN. HEIGHT (2 30˚ ELBOWS)
21 FT=MN. HEIGHT (4 30˚ ELBOWS)
86FT=MAX. HEIGHT (CHIMNEY SUPPORT
EVERY 25 FT)
FIRESTOP MODEL LF-FS-2
FIRESTOP MODEL LF-FS-2
(REQUIRES 17x17 FRAMING)
(REQUIRES 17x17 FRAMING)
54"
54"
STORM COLLAR
STORM COLLAR
MODEL LC CHIMNEY CAP
MODEL LC CHIMNEY CAP
ROOF FLASHING
ROOF FLASHING
MODEL 612
MODEL 612
CAUTION:
CAUTION:
DO NOT RESTRICT SIDE AIR
DO NOT RESTRICT SIDE AIR
INLET VENTS WITH SURROUND
INLET VENTS WITH SURROUND
OR TRIM MATERIALS
OR TRIM MATERIALS
GALVANIZED METAL STRIP
GALVANIZED METAL STRIP
NAIL TO FRAMING MEMBERS
NAIL TO FRAMING MEMBERS
SB5400SS
SB5400SS
FIREPLACE MODEL
FIREPLACE MODEL
FLEXIBLE DUCT TYPE
FLEXIBLE DUCT TYPE
FP-4-U
FP-4-U
COMBUSTION AIR
COMBUSTION AIR
ASSEMBLY
ASSEMBLY
FIGURE 1
53D9036. Rev 1 03/03










