User manual

9
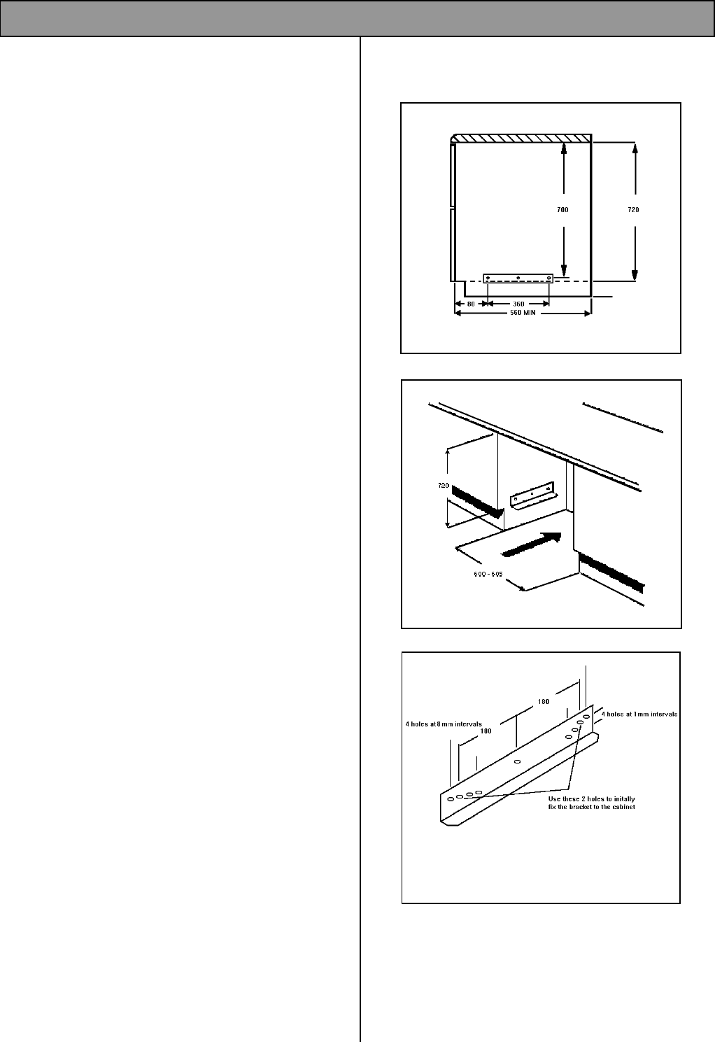
PREPARING CABINET FOR FITTING
OVEN
• Make sure the space between the cabinets is the
correct size for the appliance to be fitted (Ref.
Fig. 5 & 6).
• The plinth board spanning the space into which
the appliance is to be installed should be
removed.
• If the size between adjacent cabinets is 605-
610mm, then the cabinets should be modified so
that the recommended dimension of at least 600-
605mm is maintained.
• The adjacent cabinets must be stable and firmly
secured to the wall or floor. If necessary, make
arrangements to ensure the work surface below
which the oven will rest is level.
• Drill two pilot screw holes into the sides of the
adjacent cabinets, in the positions indicated by
Fig. 5.
• Fit the appliance mounting brackets using the
two holes indicated in Fig. 7 to the adjacent
cabinets (Ref. Fig. 5 & 6 ).
• Check that the mounting brackets are level.
They can be adjusted if necessary by using the
extra holes at the ends of the brackets. Once the
brackets are level, drill a pilot hole through the
central hole in the bracket and fit the remaining
screw.
INSTALLATION INSTRUCTIONS
Fig. 5
Fig. 7
INSTALLATION INSTRUCTIONS
Fig. 6